Věci Obecní

Detail

Dokument

Praha

Hlavní město Praha

Mariánské náměstí 2, 11000 Praha
Web obce ↗
Záměry obce

28. března 2026 — pronájem části komunikace parc. č. 1421/18 k.ú. Šeberov dle přílohy

1Body jednání
1
Záměr pronájmu části komunikace Kunratická spojka v k.ú. Šeberov
Hlavní město Praha oznamuje záměr pronajmout **část komunikace Kunratická spojka** na pozemku **parc. č. 1421/18** v **k.ú. Šeberov**. Účelem pronájmu je komerční zábor pro **mobilní stánek** o výměře **4 m²**. Budoucím nájemcem je **Městská část Praha-Šeberov** (IČO: 00241717). Období pronájmu je plánováno od **15.05.2027** do **30.09.2027**.
1Dokumenty
Záměry obce

28. března 2026 — pronájem části komunikace parc. č. 4880/1 k.ú. Smíchov dle přílohy

1Body jednání
1
Záměr pronájmu části komunikace v ul. Plzeňská, k.ú. Smíchov
Hlavní město Praha oznamuje záměr pronajmout část komunikace **Plzeňská** na pozemku **parc. č. 4880/1** v **k.ú. Smíchov** (lokalita **Praha 5**). Předmětem nájmu je plocha o výměře **18 m²** za účelem stavebního záboru pro mobilní lešení. Budoucím nájemcem je společnost **Enerfina, s.r.o.** (IČO: 26191377). Předpokládané období nájmu je **od 11.05.2026** do konce stavby, maximálně však na dobu jednoho roku.
1Dokumenty
Záměry obce

28. března 2026 — pronájem části komunikace parc. č. 4159 k.ú. Vinohrady dle přílohy

1Body jednání
1
Záměr pronájmu části komunikace Budečská, k.ú. Vinohrady
Hlavní město Praha oznamuje záměr pronajmout **část komunikace Budečská** na pozemku **parc. č. 4159** v **k.ú. Vinohrady** (**Praha 2**). Účelem pronájmu je **stavební zábor pro staveniště** o výměře **20 m²**. Budoucím nájemcem je společnost **ASA Atelier A s. r. o.** (IČO: 13995391). Období nájmu je plánováno **od 01.06.2026** do konce stavby, maximálně však na jeden rok.
1Dokumenty
Záměry obce

28. března 2026 — pronájem části komunikace parc. č. 4216, 4217/1 k.ú. Vinohrady dle přílohy

1Body jednání
1
Pronájem části komunikace parc. č. 4216, 4217/1 k.ú. Vinohrady
Záměr pronajmout část komunikace v ulicích **Máchova** a **Rybalkova** na pozemcích **parc. č. 4216** a **parc. č. 4217/1** v **k.ú. Vinohrady** (**Praha 2**). Účelem pronájmu je umístění **restaurační předzahrádky s podiem** o celkové výměře **34 m²**. Budoucím nájemcem je společnost **ARETINO spol. s r.o.** (IČO: 28956443). Předpokládané období nájmu je **od 20.04.2026 do 21.09.2026**.
1Dokumenty
Záměry obce

28. března 2026 — pronájem části komunikace parc. č. 3192/1, 3454/1 k.ú. Michle dle přílohy

1Body jednání
1
Záměr pronájmu části komunikace Michelská
Hlavní město Praha oznamuje záměr pronajmout část komunikace **Michelská** na pozemcích **parc. č. 3192/1** a **3454/1** v **k.ú. Michle**. Účelem pronájmu je **výkop pro staveništní vjezd** v lokalitě **Praha 4**. Celková výměra pronajaté plochy činí **53 m²**. Předpokládaná doba nájmu je **od 15.04.2026 do konce stavby (maximálně do jednoho roku)**. Budoucím nájemcem má být společnost **PTÁČEK a.s.** (IČO: 28209320) se sídlem **Nad Vinným potokem 1149/2, Vršovice**.
1Dokumenty
Záměry obce

28. března 2026 — pronájem části komunikace parc. č. 1417/2, 1417/7, 1417/10, 1417/11, 1417/12, 1417/15, 1417/21, 2050, 2051 k.ú. Vysočany dle přílohy

1Body jednání
1
Záměr pronájmu částí komunikací v k.ú. Vysočany pro pokládku optiky
Hlavní město Praha oznamuje záměr pronajmout části komunikací **Na Vysočanských vinicích**, **Na Krocínce** a **Pod Krocínkou** na pozemcích parc. č. **1417/2**, **1417/7**, **1417/10**, **1417/11**, **1417/12**, **1417/15**, **1417/21**, **2050** a **2051** v **k.ú. Vysočany**. Účelem nájmu je **pokládka optiky a zábory** v rámci ulice **Na Krocínce** a okolí. Budoucím nájemcem je společnost **BOHEMIATEL, s.r.o.** (IČO: 60491515). Realizace je rozdělena do 9 etap s termíny zahájení od **14.04.2026** do **28.05.2026**, přičemž každá etapa potrvá maximálně jeden rok.
1Dokumenty
Doprava

28. března 2026 — návrh OOP-B28-vyparkování-1/2Maraton

1Body jednání
1
Návrh OOP - dočasný zákaz zastavení pro Generali 1/2Maraton Praha 2026
Magistrát hl. m. Prahy zveřejňuje návrh opatření obecné povahy pro **dočasný zákaz zastavení** silničních vozidel v souvislosti s pořádáním **26. ročníku sportovní akce Generali 1/2Maraton Praha**. Omezení se týká těchto lokalit: na území **MČ Praha 1, 2, 7, 8** jde o ulice **nábřeží Kapitána Jaroše**, **nábřeží Edvarda Beneše** (podjezdy pod **Čechovým mostem** a **Štefánikovým mostem**), **Dvořákovo nábřeží**, **17. listopadu**, **náměstí Jana Palacha**, **Křižovnická**, **Smetanovo nábřeží**, **Rašínovo nábřeží**, **Masarykovo nábřeží**, **Rohanské nábřeží** a **Štorchova** v termínu **28. 3. 2026 od 00:01 do 16:00**. Na území **MČ Praha 5** se zákaz týká ulic **Janáčkovo nábřeží**, **Nábřežní**, **Hořejší nábřeží**, **Zborovská** a **Svornosti** v termínu od **27. 3. 2026 22:00 do 28. 3. 2026 16:00**. Dotčené osoby mohou k návrhu uplatnit námitky do 10 dnů od jeho zveřejnění.
1Dokumenty
Doprava

28. března 2026 — Vodičkova

1Body jednání
1
Stanovení přechodné úpravy provozu v ulici Vodičkova
Magistrát hl. m. Prahy stanovil přechodnou úpravu provozu a úplnou uzavírku v ulici **Vodičkova**, konkrétně v úseku mezi ulicemi **Řeznická** a **Navrátilova**. Důvodem je zajištění bezpečnosti v rámci konání akce **Festival Struny dětem**, který probíhá v **Divadle Minor** a v prostorách **Novoměstské radnice**. Omezení platí ve dnech **28. března 2026** a **29. března 2026** vždy v čase od **8:00 do 20:00**. Objízdné trasy jsou vedeny přes **Karlovo náměstí** a ulici **Spálená**.
Rozhodnutí: Magistrát hl. m. Prahy vydal opatření obecné povahy, kterým schvaluje umístění dočasného dopravního značení pro akci **Festival Struny dětem** na pozemní komunikaci **Vodičkova**.
2Dokumenty
Záměry obce

27. března 2026 — výpůjčka části komunikace parc. č. 2166/57 k.ú. Stodůlky dle přílohy

1Body jednání
1
Výpůjčka části komunikace parc. č. 2166/57 k.ú. Stodůlky
Hlavní město Praha oznamuje záměr vypůjčit část komunikace **U Jezera** na pozemku **parc. č. 2166/57** v **k.ú. Stodůlky** (**Praha 13**). Předmětem výpůjčky je plocha o výměře **137,5 m²** za účelem komerčního záboru pro potřeby **Samosprávy, PČR a MP**. Budoucím vypůjčitelem je **Krajské ředitelství policie hlavního města Prahy** (IČO: 75151472). Výpůjčka bude sjednána na **dobu účinnosti rozhodnutí příslušného silničního správního úřadu**.
1Dokumenty
Záměry obce

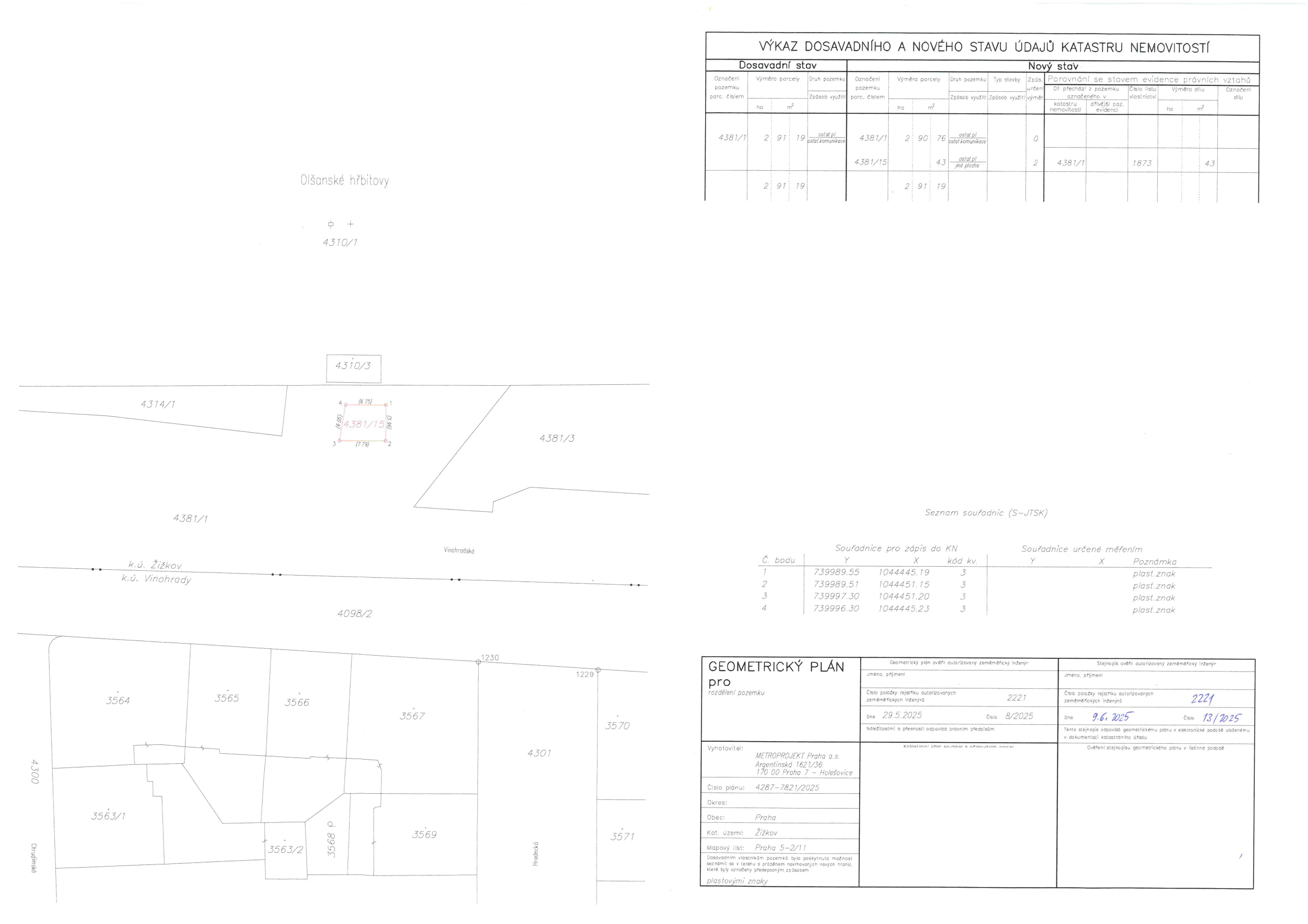
27. března 2026 — Záměr - úplatný převod části pozemku parc. č. 4381/1 v katastrálním území Žižkov

1Body jednání
1
Záměr prodat část pozemku parc. č. 4381/1 v k.ú. Žižkov
Magistrát hlavního města Prahy oznamuje záměr prodat **část pozemku parc. č. 4381/1**, která je dle geometrického plánu č. 4287-7821/2025 nově označena jako **pozemek parc. č. 4381/15** o výměře **43 m2** v **katastrálním území Žižkov**. Kupujícím má být společnost **Dopravní podnik hl. m. Prahy, akciová společnost** za kupní cenu minimálně **15 280 Kč/m2**. Účelem prodeje je **zřízení kiosku výtahu pro bezbariérový přístup do stanice metra Flora**.
2Dokumenty
1Obrázky
Záměry obce

27. března 2026 — krátkodobý pronájem části pozemků v k.ú. Hodkovičky

1Body jednání
1
Krátkodobý pronájem částí pozemků v k.ú. Hodkovičky
Hlavní město Praha zveřejňuje záměr krátkodobě pronajmout části pozemků **parc. č. 922/1** (dvě části o výměrách **80 m2** a **110 m2**) a **parc. č. 999/54** (o výměře **85 m2**) v **k.ú. Hodkovičky**. Budoucím nájemcem je společnost **Vivus Hodkovičky s.r.o.** (IČO: **60276673**). Pozemky mají být užívány v rámci investiční akce „**Hodkovičky Nad Řekou**“, která se týká lokality ulic **Modřanská**, **V Mokřinách**, **Na Lysinách** a pozemku **parc. č. 82/4**.
2Dokumenty
Záměry obce

27. března 2026 — krátkodobý pronájem části pozemků v k.ú. Kamýk

1Body jednání
1
Krátkodobý pronájem částí pozemků v k.ú. Kamýk
Hlavní město Praha oznamuje záměr **krátkodobě pronajmout** části pozemků v **k.ú. Kamýk** za účelem užívání v rámci akce **„Obnova kabelů VN z TR 9914“** (lokalita **Praha 12 - Kamýk, Kabeláčova**). Jedná se o tyto pozemky: - **parc. č. 1864/31** o výměře **40 m²** - **parc. č. 1864/88** o výměře **40 m²** - **parc. č. 1867/4** o výměrách **235 m²** a **8 m²** Nájemcem má být společnost **PREdistribuce, a.s.** (IČO: **27376516**). Zájemci mohou své nabídky a vyjádření podávat nejpozději do **13.04.2026**.
Rozhodnutí: Magistrát hlavního města Prahy oznamuje záměr pronajmout části pozemků parc. č. 1864/31, 1864/88 a 1867/4 v k.ú. Kamýk.
2Dokumenty
Záměry obce

27. března 2026 — Záměr - úplatný převod části pozemku parc. č. 4674/1 v k. ú. Smíchov

1Body jednání
1
Záměr - úplatný převod části pozemku parc. č. 4674/1 v k. ú. Smíchov
Magistrát hlavního města Prahy oznamuje záměr prodat část pozemku **parc. č. 4674/1** v katastrálním území **Smíchov**. Tato část je na základě geometrického plánu č. **6037-12/2025** nově označena jako pozemek **parc. č. 4674/6** o výměře **11 m2**. Prodej je navržen vlastníkům sousedících nemovitostí (fyzickým osobám) za kupní cenu **17 700 Kč/m2**, což činí celkem **194 700 Kč**. Zájemci se mohou k záměru vyjádřit do **20.04.2026**.
2Dokumenty
Záměry obce

27. března 2026 — Záměr na výpůjčku části pozemku parc. č. 432/1 v k. ú. Petrovice

1Body jednání
1
Záměr na výpůjčku části pozemku parc. č. 432/1 v k. ú. Petrovice
Magistrát hlavního města Prahy oznamuje záměr vypůjčit část pozemku **parc. č. 432/1** v **k. ú. Petrovice** o výměře **25 m²** společnosti **CEPS a.s.** (IČO: **25721551**). Účelem výpůjčky je využití pozemku pro akci **„Vnitřní inspekce VTL plynovodu Velká Chuchle – Petrovice“**. Termín výpůjčky je stanoven na dobu určitou od **01.05.2026** do **30.11.2026**. Veřejnost se může k záměru vyjádřit do **11.04.2026**.
2Dokumenty
1Obrázky
Záměry obce

27. března 2026 — Záměr pronajmout pozemek parc. č. 1358/1 a parc. č. 1358/18, oba v katastrálním území Chodov

1Body jednání
1
Záměr pronajmout pozemky parc. č. 1358/1 a parc. č. 1358/18 v k.ú. Chodov
Hlavní město Praha zveřejňuje záměr pronajmout pozemky **parc. č. 1358/1** o výměře **1.739 m2** a **parc. č. 1358/18** o výměře **127 m2**, oba v **k.ú. Chodov**. Nájemcem má být právnická osoba **SupremeXP Enterprise s.r.o.** (IČO: 09294121). Účelem nájmu je **údržba zeleně, provozování kulturních a preventivních programů na venkovních prostorách a parkování pro veřejnost**. Nájem je navržen na dobu neurčitou za roční nájemné ve výši **724.941 Kč** (tj. **388,50 Kč/m2/rok**). Zájemci se mohou k záměru vyjádřit nebo předložit nabídky do **13.04.2026**.
2Dokumenty
1Obrázky
Záměry obce

27. března 2026 — Záměr pronajmout část pozemku parc. č. 230/7 v katastrálním území Chodov

1Body jednání
1
Záměr pronajmout část pozemku parc. č. 230/7 v k.ú. Chodov
Magistrát hlavního města Prahy zveřejňuje záměr pronajmout **část pozemku parc. č. 230/7** o výměře **441 m2** v **k.ú. Chodov**. Nájemcem má být společnost **Er prof, spol. s r.o.** (IČO: 26477009). Účelem nájmu je zásobování **objektu č. p. 1359** ve vlastnictví nájemce. Nájemné je stanoveno na **110 250 Kč ročně** (tj. **250 Kč/m2/rok**) na **dobu neurčitou**.
2Dokumenty
1Obrázky
Záměry obce

27. března 2026 — pronájem části komunikace parc. č. 1069 k.ú. Malá Strana dle přílohy

1Body jednání
1
Záměr pronájmu části komunikace Vítězná, k.ú. Malá Strana
Hlavní město Praha oznamuje záměr pronajmout **část komunikace Vítězná** na pozemku **parc. č. 1069** v **k.ú. Malá Strana** (**Praha 5**). Pronájem je určen pro budoucího nájemce **Stará Praha, spol. s r.o.** (IČO: 26707845) za účelem zřízení **restaurační předzahrádky bez pódia**. Záměr se týká celkem 9 etap v období od **6. 5. 2024 do 30. 10. 2026** s proměnlivou výměrou **5 m²** až **10 m²**.
1Dokumenty
Záměry obce

27. března 2026 — pronájem části komunikace parc. č. 4339 k.ú. Žižkov dle přílohy

1Body jednání
1
Záměr pronájmu části komunikace Kubelíkova, k.ú. Žižkov
Hlavní město Praha zveřejňuje záměr pronajmout část komunikace **Kubelíkova** na pozemku **parc. č. 4339** v **k.ú. Žižkov** (lokalita **Praha 3**). Předmětem nájmu je plocha o výměře **9 m²** za účelem provozování **restaurační předzahrádky bez pódia**. Budoucím nájemcem je společnost **KAFEVPRESU s.r.o.** (IČO: 23024798). Pronájem je plánován na období od **20.04.2026** do **31.10.2026**. Písemné připomínky k záměru lze podat do **11.04.2026**.
1Dokumenty
Záměry obce

27. března 2026 — pronájem části komunikace parc. č. 2311 k.ú. Holešovice dle přílohy

1Body jednání
1
Záměr pronájmu části komunikace Přístavní v k.ú. Holešovice
Záměr pronajmout **část komunikace Přístavní** na pozemku **parc. č. 2311** v **k.ú. Holešovice** za účelem **komerčního záboru pro restaurační předzahrádku s podiem**. Celková výměra záboru činí **11,1 m²**. Pronájem je plánován na období **od 01.06.2026 do 31.10.2026** pro budoucího nájemce **STEEL MOOD s.r.o. (IČO: 08665770)**. Připomínky lze podat do **11.04.2026**.
1Dokumenty
Záměry obce

27. března 2026 — pronájem části komunikace parc. č. 4275/10 k.ú. Vinohrady dle přílohy

1Body jednání
1
Záměr pronájmu části komunikace na náměstí Jiřího z Poděbrad
Hlavní město Praha oznamuje záměr pronajmout **část komunikace náměstí Jiřího z Poděbrad** na pozemku **parc. č. 4275/10 v k.ú. Vinohrady**. Účelem pronájmu je **komerční zábor pro restaurační předzahrádku bez podia** o výměře **8 m²**. Předpokládaný nájemce je společnost **NeverEnough s.r.o. (IČO: 04587359)**. Doba nájmu je určena na období **od 25.04.2026 do 18.11.2026**.
1Dokumenty