Věci Obecní

Detail

Dokument

Praha

Hlavní město Praha

Mariánské náměstí 2, 11000 Praha
Web obce ↗
Záměry obce

7. března 2026 — pronájem části komunikace parc. č. 812/1 k.ú. Karlín dle přílohy

1Body jednání
1
Záměr pronájmu části komunikace Křižíkova, k.ú. Karlín
Hlavní město Praha oznamuje záměr pronajmout část komunikace v ulici **Křižíkova** na pozemku **parc. č. 812/1** v **k.ú. Karlín** (Praha 8). Jedná se o plochu o výměře **20 m²** určenou pro **stavební zábor**. Budoucím nájemcem má být společnost **Boutiq Construction s.r.o.** (IČO: 19206038). Předpokládaný termín nájmu je **od 20.04.2026** na dobu maximálně jednoho roku. Připomínky lze podat do **22.03.2026**.
1Dokumenty
Záměry obce

7. března 2026 — výpůjčka části komunikace parc. č. 959 k.ú. Malešice dle přílohy

1Body jednání
1
Záměr výpůjčky části komunikace Tuchorazská, k.ú. Malešice
Hlavní město Praha oznamuje záměr vypůjčit část komunikace **Tuchorazská** na pozemku **parc. č. 959** v **k.ú. Malešice** (Praha 10). Účelem výpůjčky je komerční zábor pro **držitele průkazu ZTP nebo ZTP/P** (pro vozidlo s RZ **9AI 5010**) o výměře **12,5 m²**. Doba výpůjčky je stanovena po dobu účinnosti rozhodnutí příslušného silničního správního úřadu.
1Dokumenty
Záměry obce

7. března 2026 — pronájem části komunikace parc. č. 4971 k.ú. Smíchov dle přílohy

1Body jednání
1
Záměr pronájmu části komunikace Štefánikova, k.ú. Smíchov
Hlavní město Praha zveřejňuje záměr pronajmout část komunikace **Štefánikova** na pozemku **parc. č. 4971** v **k.ú. Smíchov**. Předmětem pronájmu je plocha o výměře **3 m²** za účelem provozování **restaurační předzahrádky bez pódia**. Budoucím nájemcem je společnost **Vína srdcem, s.r.o.** (IČO: 05823676). Pronájem je plánován na období od **03.04.2026** do **31.10.2026**. Připomínky lze podat u TSK hl. m. Prahy nejpozději do **22.03.2026**.
1Dokumenty
Informace dle §106

6. března 2026 — Poskytnutí informace dle zákona č. 106/1999 Sb. - udělování pokut - § 35 a § 39 zákona č. 20/1987 PZ

1Body jednání
1
Poskytnutí informací o pokutách za porušení památkového zákona v roce 2025
Magistrát hl. m. Prahy poskytl na základě žádosti dle zákona č. 106/1999 Sb. informace o uložených pokutách za přestupky na úseku památkové péče v roce 2025. Rozhodnutí se týkají zejména nesplnění oznamovací povinnosti vůči Archeologickému ústavu AV ČR při stavební činnosti na území s archeologickými nálezy a znehodnocení kulturních památek. Mezi konkrétní případy patří: - **Výstavba RD Březiněves s.r.o.**: Pokuta **2 500 Kč** za zahájení stavební činnosti na pozemcích **parc. č. 427/926** a **parc. č. 584** v **k. ú. Březiněves** při ulici **Vraní** bez splnění oznamovací povinnosti. - **Fyzická osoba**: Pokuta **150 000 Kč** za nepovolenou demolici rodinného domu na pozemku **parc. č. 5** v **k. ú. Královice** (součást kulturní památky **Hradiště Šance**). - **PREdistribuce, a.s.**: Pokuta **25 000 Kč** za obnovu betonového základu sloupu na pozemku **parc. č. 2343** v **k. ú. Hostivař** (součást kulturní památky **hradiště Hostivař**) bez oznámení. - **INDUSTRY MEASURING, spol. s r.o.**: Pokuta **5 000 Kč** za přístavbu objektu **č. p. 1870** (**Zavadilova 17**) na pozemku **parc. č. 1020** v **k. ú. Dejvice** při ulicích **Zavadilova** a **Starodejvická**.
Rozhodnutí: Informace byly poskytnuty formou kopií anonymizovaných rozhodnutí o uložení pokut.
12Dokumenty
Záměry obce

6. března 2026 — pronájem části komunikace parc. č. 2310 k.ú. Holešovice dle přílohy

1Body jednání
1
Záměr pronájmu části komunikace v ulici Osadní, k.ú. Holešovice
Záměr **Hlavního města Prahy** pronajmout část komunikace v ulici **Osadní** na pozemku parc. č. **2310** v k.ú. **Holešovice**. Účelem nájmu je umístění **restaurační předzahrádky** bez pódia o výměře **8 m²**. Budoucím nájemcem je společnost **Honza Food, s.r.o.** (IČO: **07873417**) se sídlem **Jankovcova 1055/13, Holešovice**. Doba pronájmu je stanovena od **01.05.2026** do **10.10.2026**.
1Dokumenty
Záměry obce

6. března 2026 — pronájem části komunikace parc. č. 4314/2 k.ú. Vinohrady dle přílohy

1Body jednání
1
Záměr pronájmu části komunikace Korunní, k.ú. Vinohrady
Hlavní město Praha oznamuje záměr pronajmout část komunikace **Korunní** na **parc. č. 4314/2** v **k.ú. Vinohrady** (lokalita **Praha 3**). Účelem pronájmu je stavební zábor pro umístění podchozího lešení a ohrady v ulici **Korunní**. Budoucím nájemcem je společnost **STABIA s.r.o.** (IČO: 29111021). Pronájem je rozdělen do tří etap: **1. etapa** (od **08.04.2026**, výměra **44,1 m²**), **2. etapa** (od **01.06.2026**, výměra **12,6 m²**) a **3. etapa** (od **01.06.2026**, výměra **8 m²**).
1Dokumenty
Záměry obce

6. března 2026 — pronájem části komunikace parc. č. 812/1 k.ú. Karlín dle přílohy

1Body jednání
1
Pronájem části komunikace Křižíkova v k.ú. Karlín
Hlavní město Praha oznamuje záměr pronajmout část komunikace **Křižíkova** na pozemku **parc. č. 812/1** v **k.ú. Karlín** (Praha 8). Jedná se o plochu o výměře **16 m²** určenou pro **restaurační předzahrádku bez pódia**. Budoucím nájemcem je společnost **BF GASTRO s.r.o.** (IČO: 25755854). Nájem je plánován na období od **01.04.2026** do **30.09.2026**. Připomínky lze podat u TSK hl. m. Prahy a.s. nejpozději do **21.03.2026**.
1Dokumenty
Záměry obce

6. března 2026 — pronájem části komunikace parc. č. 2306 k.ú. Holešovice dle přílohy

1Body jednání
1
Záměr pronájmu části komunikace Komunardů, k.ú. Holešovice
Technická správa komunikací hl. m. Prahy a.s. zveřejňuje záměr pronajmout část komunikace **Komunardů** na pozemku **parc. č. 2306** v **k.ú. Holešovice** (Praha 7). Předmětem nájmu je plocha o výměře **12 m²** určená pro umístění **restaurační předzahrádky bez pódia**. Pronájem je plánován na období od **01.05.2026** do **30.09.2026**. Budoucím nájemcem je společnost **Fénix Wings Solutions s.r.o.** (IČO: 08038775), se sídlem **Tusarova 1268/13, Holešovice**. Připomínky lze podat do 21.03.2026.
1Dokumenty
Záměry obce

6. března 2026 — pronájem části komunikace parc. č. 2222 k.ú. Holešovice dle přílohy

1Body jednání
1
Záměr pronájmu části komunikace v ulici Veverkova, k.ú. Holešovice
Hlavní město Praha zveřejňuje záměr pronajmout část pozemku **parc. č. 2222** v **k.ú. Holešovice** (ulice **Veverkova**, **Praha 7**). Účelem pronájmu je umístění **restaurační předzahrádky bez podia** o výměře **9 m²**. Předpokládaná doba nájmu je od **01.05.2026** do **30.09.2026**. Budoucím nájemcem je **Gabriela Holická** (IČO: **75550784**) se sídlem **Milady Horákové 600/38, Holešovice**.
1Dokumenty
Veřejné vyhlášky

6. března 2026 — IPPC - Informace o vydání opravného rozhodnutí k 13. změně integrovaného povolení pro zařízení "INTERPHARMA PRAHA"

1Body jednání
1
Opravné rozhodnutí k 13. změně integrovaného povolení pro zařízení INTERPHARMA PRAHA
Magistrát hlavního města Prahy informuje o vydání opravného rozhodnutí k **13. změně integrovaného povolení** při nepodstatné změně v provozu zařízení **INTERPHARMA PRAHA**. Provozovatelem zařízení je společnost **Interpharma Praha, a.s.** (IČO 44265409) se sídlem na adrese **Komořanská 955, 143 00 Praha 4 – Modřany**. Rozhodnutí je k nahlédnutí na odboru ochrany prostředí MHMP v termínu od **09.03.2026** do **08.04.2026**.
Rozhodnutí: Vydáno opravné rozhodnutí k 13. změně integrovaného povolení při nepodstatné změně v provozu zařízení.
1Dokumenty
Záměry obce

6. března 2026 — Oznámení o nabídce na odkoupení souboru nalezených věcí

1Body jednání
1
Oznámení o nabídce na odkoupení souboru nalezených věcí
Magistrát hlavního města Prahy nabízí k odkoupení ucelený soubor **138 položek** nalezených věcí, které přešly do vlastnictví obce. Soubor obsahuje zejména: **jízdní kola (značek Specialized, Trek, KTM, Kellys, Author, Stevens, Focus)**, **koloběžky**, **elektroniku (Playstation 4, iPady, MacBooky, notebooky Acer a Lenovo, čtečky knih, powerbanky)**, **mobilní telefony (iPhone, Samsung, Redmi, Huawei, Motorola)**, **elektrické nářadí Makita**, **bourací kladivo**, **brusky**, **golfové a hokejové vybavení**. Věci jsou uloženy ve skladových prostorách na adrese **Varhulíkové 302/12, Praha 7 – Holešovice**. Prohlídka je možná po dohodě ve dnech **2. 3. 2026 – 6. 3. 2026**. Prodej proběhne obálkovou metodou, kritériem je nejvyšší nabízená cena za celý soubor. Nabídky musí být doručeny nejpozději do **6. 3. 2026**.
1Dokumenty
Informace dle §106

6. března 2026 — Výzva dotčeným osobám

1Body jednání
1
Výzva k vyjádření k žádosti o informace o příjmech zastupitelů za rok 2025
Magistrát hlavního města Prahy obdržel žádost o poskytnutí informací podle zákona **č. 106/1999 Sb.** od organizace **Hlídač státu, z.ú.** (IČO: **05965527**, **Velenovského 648, 251 64 Mnichovice**). Žádost se týká výše veškerých vyplacených příjmů, odměn, náhrad, benefitů a naturálních plnění (včetně užívání **služebního vozidla** nebo **poskytnutého ubytování**) všech členů **Zastupitelstva hlavního města Prahy**, kteří vykonávali funkci v roce **2025**. Dotčené osoby (členové zastupitelstva) jsou tímto vyzývány k uplatnění práva vyjádřit se k žádosti, a to nejpozději do **6. 3. 2026**. Úřední úkony probíhají na pracovištích **Mariánské nám. 2/2, 110 00 Praha 1** a **Jungmannova 36/31, 110 00 Praha 1**.
2Dokumenty
Záměry obce

6. března 2026 — Záměr pronájmu - Papírenská 1136, Praha 6

1Body jednání
1
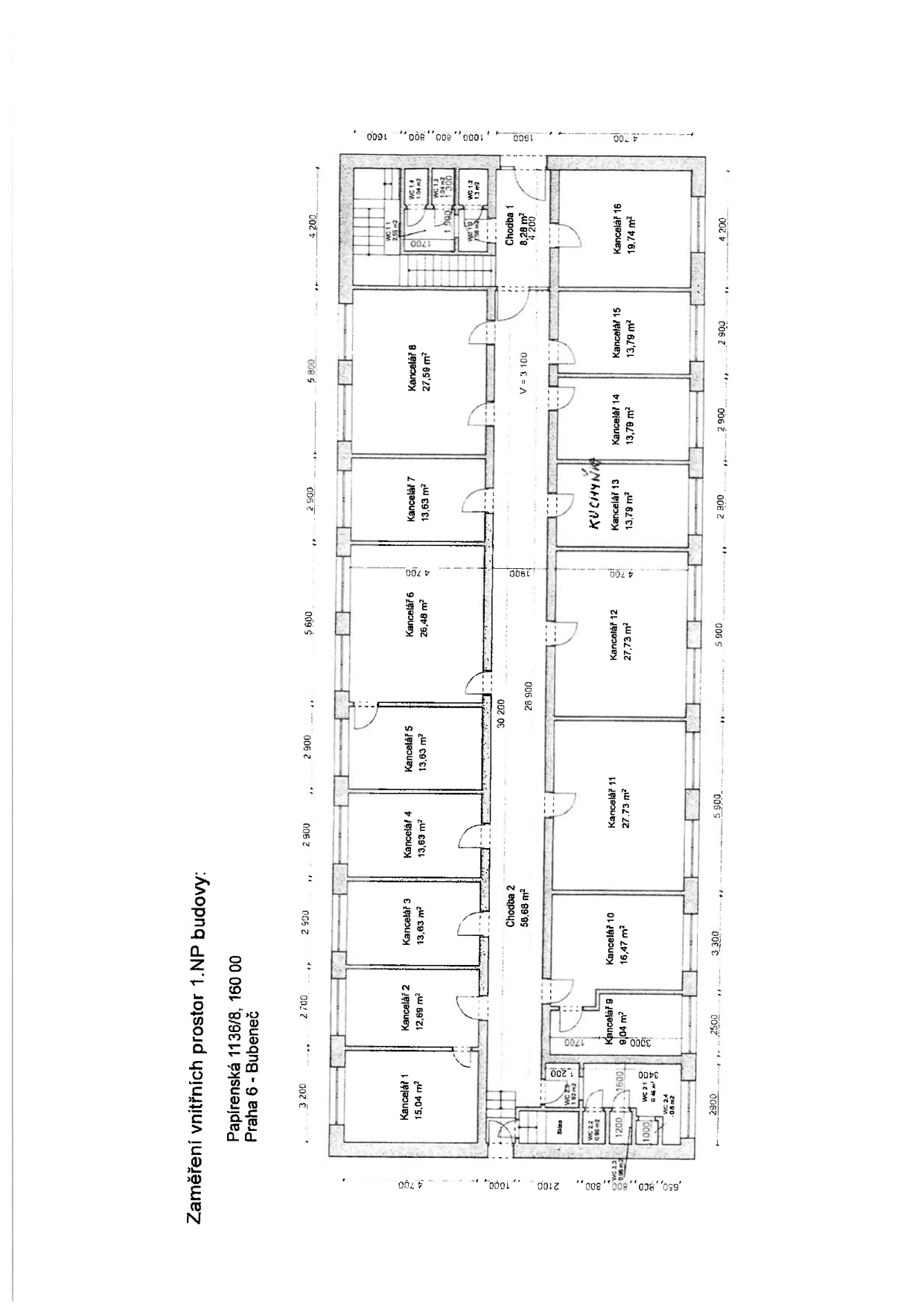
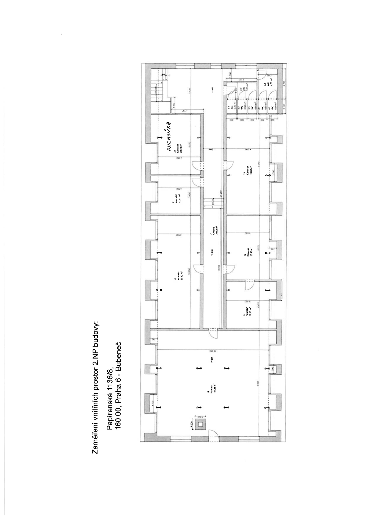
Záměr pronájmu kancelářských prostor v budově Papírenská 1136/8, Praha 6 - Bubeneč
Magistrát hlavního města Prahy oznamuje záměr pronajmout nebytové prostory (kanceláře) v **1. a 2. nadzemním podlaží** budovy **č.p. 1136**, která je součástí pozemku **parc. č. 1720/9** v **k.ú. Bubeneč**, na adrese **Papírenská 1136/8, Praha 6**. Jedná se o tyto prostory: - **1. NP**: místnosti č. **1** (15,04 m2), **2** (12,69 m2), **3, 4, 5, 7** (každá 13,63 m2), **6** (26,48 m2), **14, 15** (každá 13,79 m2) a **16** (19,74 m2). - **2. NP**: místnosti č. **17** (111,85 m2), **18** (51,42 m2), **20** (21,75 m2), **21** (17,11 m2) a **23** (46,3 m2). Nájemné je stanoveno ve výši **2 705 Kč/m2/rok**. Doba nájmu je na **dobu neurčitou** s tříměsíční výpovědní lhůtou. Zájemci mohou předkládat své nabídky nejpozději do **25. 3. 2026**.
2Dokumenty
2Obrázky
Záměry obce

6. března 2026 — pronájem části komunikace parc. č. 4190 k.ú. Vinohrady dle přílohy

1Body jednání
1
Záměr pronájmu části komunikace Šafaříkova, k.ú. Vinohrady
Hlavní město Praha oznamuje záměr pronajmout část komunikace v ulici **Šafaříkova** na pozemku **parc. č. 4190** v **k.ú. Vinohrady** (Praha 2). Účelem pronájmu je umístění **restaurační předzahrádky bez pódia** o výměře **7,5 m²**. Budoucím nájemcem je **Pavlo Katerynčuk** (IČO: 04141326). Předpokládané období pronájmu je od **07.04.2026** do **17.10.2026**.
1Dokumenty
Záměry obce

6. března 2026 — pronájem části komunikace parc. č. 2296 k.ú. Holešovice dle přílohy

1Body jednání
1
Záměr pronájmu části komunikace U Uranie, k.ú. Holešovice
Hlavní město Praha zveřejňuje záměr pronajmout část komunikace **U Uranie** na pozemku **parc. č. 2296** v **k.ú. Holešovice**. Předmětem pronájmu je plocha o výměře **15 m²** určená pro umístění **restaurační předzahrádky bez podia**. Budoucím nájemcem je společnost **Fénix Wings Solutions s.r.o.** (IČO: 08038775) se sídlem **Tusarova 1268/13, Holešovice**. Pronájem je zamýšlen na období od **01.05.2026** do **30.09.2026**.
1Dokumenty
Záměry obce

6. března 2026 — pronájem části komunikace parc. č. 1940 k.ú. Vysočany dle přílohy

1Body jednání
1
Záměr pronájmu části komunikace Na Břehu, k.ú. Vysočany
Hlavní město Praha oznamuje záměr pronajmout část pozemní komunikace **Na Břehu** na pozemku **parc. č. 1940** v **k.ú. Vysočany** (**Praha 9**). Předmětem nájmu je plocha o výměře **69 m²** za účelem umístění **zařízení staveniště a stavebního výtahu** pro stavbu v ulici **Na Břehu**. Budoucím nájemcem je společnost **TPL Czech s.r.o.** (IČO: 00508616). Nájem je plánován na období od **01.04.2026** do konce stavby, maximálně však na jeden rok.
1Dokumenty
Informace dle §106

6. března 2026 — Poskytnutí informace - přestupky na úseku nakládání s odpady

1Body jednání
1
Poskytnutí informace - přestupky na úseku nakládání s odpady
Odbor ochrany prostředí **Magistrátu hlavního města Prahy** (OCP MHMP) reagoval na žádost o poskytnutí informací podle **zákona č. 106/1999 Sb.** Žádost se týkala projednávání **přestupků v oblasti nakládání s odpady** za období let **2020–2025**. OCP MHMP žadatelce sdělil, že tuto agendu vykonávají primárně **úřady městských částí Praha 1 – 22** (respektive všech 57 městských částí v roce 2020). Magistrát v těchto věcech figuruje pouze jako **odvolací správní orgán** a souhrnnými statistikami o přestupcích na úrovni městských částí nedisponuje.
1Dokumenty
Informace dle §106

6. března 2026 — Poskytnutí informace - stání vozidel v zeleni

1Body jednání
1
Poskytnutí informace - stání vozidel v zeleni na pozemku parc. č. 590/36
Magistrát hl. m. Prahy poskytl informaci týkající se parkování motorových vozidel na pozemcích evidovaných jako zeleň. Konkrétně se jedná o situaci na **parc. č. 590/36** v **k. ú. Bohnice**, který je ve vlastnictví **hlavního města Prahy** se správou svěřenou **městské části Praha 8**. Odbor ochrany prostředí potvrdil, že porušením **obecně závazné vyhlášky č. 6/2001 Sb. hl. m. Prahy**, o ochraně veřejné zeleně, je i vjezd a zaparkování části vozidla v zeleni. Jako řešení byla navržena stavebně technická úprava znemožňující vjezd na pozemek.
1Dokumenty
Informace dle §106

6. března 2026 — Pozemky parc. č. 2401/66, parc. č. 2401/84 a parc. č. 2404/2, vše v k.ú. Stodůlky

1Body jednání
1
Informace k záměru prodeje pozemků v k.ú. Stodůlky
Magistrát hlavního města Prahy poskytl informaci ohledně majetkoprávního naložení s pozemky **parc. č. 2401/66**, **parc. č. 2401/84** a **parc. č. 2404/2**, vše v **k.ú. Stodůlky**, obec **Praha**. Hlavní město Praha zamýšlí tyto pozemky **úplatně převést** (prodat), což bylo odsouhlaseno Výborem pro správu majetku ZHMP na jeho jednání dne **9. 10. 2025**. Aktuálně bude zveřejněn záměr prodeje a následně bude materiál předložen k projednání Radě HMP a Zastupitelstvu HMP.
1Dokumenty
Stavební řízení

6. března 2026 — Rozhodnutí o společném povolení BARRANDOV – Světelné signalizační zařízení, Praha 5

1Body jednání
1
Společné povolení: BARRANDOV – Světelné signalizační zařízení, Praha 5
Jedná se o společné územní a stavební povolení pro výstavbu dvou nových světelných signalizačních zařízení v ulici **Gollové** v souběhu s tramvajovým tělesem u ulic **Hugo Haase** a **Šlemrové**. Projekt zahrnuje **SSZ 5.814 Gollové - H. Haase** a **SSZ 5.839 Gollové – Šlemrové**. Součástí stavby je pokládka kabelového vedení, osazení signalizačních stožárů, návěstidel LED, chodeckých tlačítek, akustické signalizace pro nevidomé a instalace videodetekčních kamer. Stavba proběhne v katastrálním území **Hlubočepy** na parcelách č. **1792/89, 1792/91, 1792/94, 1792/97, 1792/99, 1792/101, 1792/105, 1792/124, 1792/148, 1798/550, 1792/11, 1792/13, 1792/92, 1792/100, 1792/112, 1792/114, 1792/138, 1792/142, 1792/144, 1792/145, 1792/481, 1792/760, 1792/768, 1792/769, 1793/115, 1792/791, 1792/792, 1792/795 a 1792/796**. Stavebníkem je společnost **FINEP BARRANDOV ZÁPAD k.s.**
Rozhodnutí: Magistrát hlavního města Prahy **vydává společné povolení** pro stavbu **BARRANDOV – Světelné signalizační zařízení, Praha 5**.
1Dokumenty