Věci Obecní

Detail

Dokument

Praha 9

Hlavní město Praha

Sokolovská 14, 19000 Praha 9
Web obce ↗
Poslední skenování: 2025-12-03
Stavební řízení

5. března 2026 — JES - Clarion Congres Hotel Prague - nové dobíjecí stanice ve 2. a 3.PP, Freyova 945/33

1Body jednání
1
JES - Výstavba dobíjecích stanic v hotelu Clarion, Freyova 945/33
Odbor životního prostředí Úřadu MČ Praha 9 vydal souhlasné jednotné environmentální stanovisko (JES) k záměru výstavby dobíjecích stanic pro elektromobilitu v hotelu **Clarion Congres Hotel Prague** na adrese **Freyova 945/33**, **Praha 9 – Vysočany**. Projekt se týká prostor parkoviště ve **2.PP** a **3.PP**. V rámci záměru bude instalováno celkem **13 ks AC dobíjecích stanic o výkonu 22,0 kW**, **1x DC1 o výkonu 150 kW**, **2x DC2 o výkonu 50,0 kW** a **1x DC3 o výkonu 50,0 kW**. Investorem akce je společnost **CPI eMobility, a.s.**, zastoupená **Mgr. Evou Matouškovou**. Posouzení zahrnovalo vlivy na životní prostředí a nakládání s odpady dle zákona č. 541/2020 Sb.
Rozhodnutí: Úřad městské části Praha 9 **vydává souhlasné jednotné environmentální stanovisko**. Záměr je z hlediska vlivů na všechny dotčené složky životního prostředí **přípustný**.
1Dokumenty
Stavební řízení

4. března 2026 — JES - Zařízení staveniště - čtvrť Emila Kolbena - III. etapa

1Body jednání
1
JES - Zařízení staveniště - Čtvrť Emila Kolbena III. etapa
Odbor životního prostředí Úřadu MČ Praha 9 vydal souhlasné jednotné environmentální stanovisko (JES) pro záměr dočasné stavby zařízení staveniště v rámci projektu **Čtvrť Emila Kolbena III. etapa**. Žadatelem je společnost **Skanska Residential a.s.** (se sídlem **Křižíkova 682/34a**, Praha 8). Záměr je situován na pozemcích **parc. č. 1121/1, 1121/3, 1121/4, 1121/6, 1121/7, 1121/8, 1121/9 a 1121/14** v **k.ú. Vysočany**, Praha 9. Zařízení staveniště bude tvořeno buňkovištěm ze **45 modulových kontejnerů** uspořádaných ve **3 nadzemních podlažích**. Součástí je staveništní oplocení, kontejner vrátnice, parkoviště pro osobní auta a dočasná přípojka splaškové kanalizace o délce **48 m** (materiál PVC-KG DN150).
Rozhodnutí: Odbor životního prostředí **vydává souhlasné jednotné environmentální stanovisko**, záměr je z hlediska vlivů na všechny dotčené složky životního prostředí **přípustný**. Toto JES nahrazuje závazné stanovisko dle **vodního zákona**.
2Dokumenty
Stavební řízení

4. března 2026 — JES - Přístavba Café Park Zahrádky

1Body jednání
1
JES - Přístavba Café Park Zahrádky, k.ú. Vysočany
Odbor životního prostředí Úřadu MČ Praha 9 vydal souhlasné **Jednotné environmentální stanovisko (JES)** pro záměr **"Přístavba Café Park Zahrádky"** na pozemcích **parc. č. 1808/1** a **1808/16** v **k.ú. Vysočany**. Projekt zahrnuje přístavbu jednoho **modulárního kontejneru** k výdeji jídel a nápojů (plocha **15,43 m2**) a **dřevěné terasy** (plocha **26,02 m2**). Součástí záměru je rovněž změna dočasného užívání stávajícího objektu bistra na stavbu trvalou. Dojde k trvalému záboru zemědělské půdy o celkové výměře **77,01 m2** (I. třída ochrany). Dešťové vody budou zasakovány přes **terénní průleh** o ploše **15,25 m2**. Žadatelem je společnost **FINEP CZ a.s.** zastupující investora **KALOS spol. s r.o.**
Rozhodnutí: Úřad **vydává souhlasné jednotné environmentální stanovisko** za stanovených podmínek, **souhlasí s trvalým odnětím** zemědělské půdy ze ZPF pro pozemky **parc. č. 1808/1** a **1808/16** v **k.ú. Vysočany** a **uděluje výjimku** z povinnosti provést skrývku kulturní vrstvy půdy na **parc. č. 1808/1**. Orientační odvod za odnětí půdy je stanoven na **118 764,82 Kč**.
3Dokumenty
Ostatní

4. března 2026 — PREdistribuce, a.s. oznámení o přerušení dodávky elektřiny ul. Podvinný mlýn 2126, Libeň

1Body jednání
1
Oznámení o přerušení dodávky elektřiny - Libeň
Společnost **PREdistribuce, a.s.** oznamuje plánované přerušení dodávky elektřiny z důvodu prací na distribuční soustavě. Odstávka se týká adresy **ul. Podvinný mlýn č.p. 2126** v části **Praha 9 - Libeň**. K přerušení dojde dne **4.3.2026** v čase od **8:00** do **16:00** hod. Práce provádí firma **JEZL ELEKTRO, s.r.o.** pod vedením **Ing. Lubora Marša**.
1Dokumenty
Záměry obce

3. března 2026 — Výběrové řízení - Jablonecká 322/72, Střížkov - kancelář č. 1.22.

1Body jednání
1
Záměr pronájmu nebytového prostoru - Jablonecká 322/72
Městská část **Praha 9** zveřejňuje záměr na pronájem nebytového prostoru – **kanceláře č. 1.22.** o výměře **19,1 m2** ve **2. NP** domu **čp. 322**, ul. **Jablonecká 72** v **k.ú. Střížkov**. Účel nájmu je stanoven pro kancelářské či skladové účely (vyjma hlučného provozu a bydlení). Minimální výše nájemného činí **4 000 Kč/m2/rok** (bez DPH a služeb) na dobu neurčitou. Podmínkou je složení kauce ve výši **trojnásobku měsíčního nájemného**. Nabídky v zalepené obálce označené heslem „Výběrové řízení NP Jablonecká 322/72, kancelář č. 1.22., Praha 9“ musí být doručeny do podatelny **ÚMČ Praha 9** na adresu **Sokolovská 14/324, 180 49 Praha 9 – Vysočany** nejpozději do konce doby zveřejnění (minimálně 15 dní od 2026-02-16).
1Dokumenty
Stavební řízení

3. března 2026 — rozhodnutí - povolení stavby: parc.č. 515/20, 515/25, 515/29, 515/30, 833/3 k. ú. Střížkov - Garážov

1Body jednání
1
Povolení stavby Garážového domu Poliklinika Střížkov
Stavební úřad povoluje novostavbu **Garážového domu Poliklinika Střížkov** při ulici **Lovosická** v **k. ú. Střížkov**. Stavba bude realizována na pozemcích **parc. č. 515/20, 515/25, 515/29, 515/30** a **833/3**. Garážový dům bude mít **15 nadzemních podlaží** a celkovou kapacitu **802 parkovacích stání** pro zaměstnance a návštěvníky přilehlé **Polikliniky Prosek**. Součástí projektu jsou rovněž úpravy chodníků, příjezdové komunikace a výstavba vodních děl, včetně retenční nádrže a hydrantů na pozemcích **parc. č. 515/29, 515/30** a **833/3**. Mezi sousední nemovitosti patří **Domov mládeže**, **Centrální park Přátelství** a bytová zástavba na pozemcích **parc. č. 614, 832** a okolní parcely.
Rozhodnutí: Úřad městské části Praha 9 **povoluje** záměr nazvaný '**Garážový dům Poliklinika Střížkov**' a stanovuje podmínky pro jeho realizaci a užívání.
1Dokumenty
Stavební řízení

3. března 2026 — vyrozumění o obsahu odvolání: Čtvrť Emila Kolbena V. etapa - NOP

1Body jednání
1
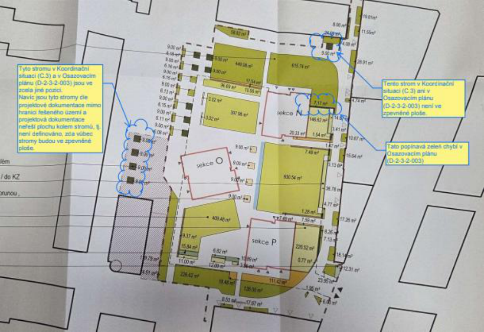
Vyrozumění o obsahu podaných odvolání: Čtvrť Emila Kolbena, etapa V.
**Úřad městské části Praha 9** vyrozumívá o obsahu odvolání podaných proti rozhodnutí č.j. **MCP09/006408/2026/OVÚR/Fri** ze dne 26. 1. 2026, kterým byl schválen stavební záměr **„Čtvrť Emila Kolbena, etapa V., budovy N, O, P (ČEK5)“**. Záměr je situován na pozemcích **parc. č. 1123/4, 1131, 1129, 1140/1, 1140/3, 1140/4, 1140/31, 1140/32, 1977/3, 1977/35, 1977/36, 1977/37, 1977/38, 1977/49, 2098** v katastrálním území **Vysočany**. Stavebníkem je společnost **Skanska Residential a.s.** Odvolání podalo celkem 8 účastníků řízení, včetně **Jana Malínského**, **Ing. Michala Kadlečka** a **Společenství vlastníků Octábcových 1039**. Odvolatelé namítají zejména nezákonný proces **EIA**, rozpor se **Zásadami územního rozvoje**, nesoulad s **územním plánem** (intenzita využití, funkční využití, výška staveb) a vady v projektové dokumentaci. Účastníci jsou vyzýváni, aby se k obsahu odvolání vyjádřili do **15 dnů**.
9Dokumenty
68Obrázky
Volná místa

2. března 2026 — Volná místa - VV 5/2026 kontaktní pracovník klubu Harfica - DPČ

1Body jednání
1
Výběrové řízení - Kontaktní pracovník klubu Harfica
Městská část **Praha 9** vyhlašuje veřejnou výzvu na pozici **kontaktní pracovník klubu Harfica** na dohodu o pracovní činnosti (**DPČ**). Místem výkonu práce je **Klub Harfica** na pomezí lokalit **Prosek** a **Střížkov**. Náplní práce je nízkoprahová práce s dětmi a mládeží ve věku **7–17 let**, tvorba volnočasového programu a základní poradenství. Nabízená odměna činí **180 Kč/hod** při rozsahu **40–80 hodin měsíčně**. Lhůta pro zaslání životopisu je do **2. března 2026**.
1Dokumenty
Volná místa

2. března 2026 — Volná místa - VŘ 13/2026 - Referent/ka odboru výstavby a územního rozvoje

1Body jednání
1
VŘ 13/2026 - Referent/ka odboru výstavby a územního rozvoje
Městská část **Praha 9** vyhlašuje výběrové řízení na pozici **Referent/ka odboru výstavby a územního rozvoje**. Nabízené platové ohodnocení odpovídá **11. platové třídě** v rozmezí **26 680 Kč – 38 570 Kč** dle praxe, s možností osobního ohodnocení až do výše **100 %**. Mezi hlavní benefity patří možnost přidělení **služebního bytu** po zkušební době, benefity v hodnotě min. **50 000 Kč/rok** a pracoviště na adrese **Sokolovská 14/324, Praha 9**. Požadováno je VŠ vzdělání v oboru architektura, stavebnictví nebo právo. Lhůta pro podání přihlášky končí **2. března 2026**.
2Dokumenty
Ostatní

2. března 2026 — Harmonogram přistavování kontejnerů na VELKOOBJEMOVÝ ODPAD - 03-06/2026 + info k 07-08/2026

1Body jednání
1
Harmonogram přistavování kontejnerů na velkoobjemový odpad (03-06/2026)
Obec zveřejnila harmonogram přistavování velkoobjemových kontejnerů (VOK) pro období **březen až červen 2026**. V měsících **červenec a srpen 2026** se služba neposkytuje. Kontejnery jsou určeny pouze pro fyzické osoby k odložení nábytku, koberců, lyží či sanitární keramiky. Stanoviště v březnu: **Jablonecká x Šluknovská**, **Kovářská x U Školičky**, **Bílinská x Litvínovská**, **Vysočanské nám. x Prokopka**, **K Lipám x Chrastavská**, **Vysočanská 113**, **Měšická x Novoborská**, **Pískovcová**, **Nad Krocínkou x Obvodová**, **nám. Na Balabence**, **Jablonecká 9**, **Veltruská x Litvínovská**, **Skloněná u č. 8**, **Na Břehu x Mlékárenská**, **Vysočanská 39**, **Lihovarská 11**, **Poděbradská x Podkovářská**, **Kytlická (proti středisku)**, **Před Mosty x Za Mosty**, **Matějkova x Čihákova**, **Prosecká 131**, **Rumburská x Litvínovská**, **Pešlova x Paříkova**. Stanoviště v dubnu (další): **Vysočanská 85**, **Kovanecká x Podvinný mlýn**, **Hrdlořezská 43**, **Stoupající (u hřbitova)**, **Teplická x Litoměřická**, **Granitova x Saarinenova**, **Čihákova 42**, **Celniční x Pokorného**, **Makedonská 1**, **Pod Krocínkou proti č. 55**, **Ctěnická x Měšická**, **Prouzova**, **Kopečná x Nad Šestikopy**, **Pod Strojírnami**, **Svatošových x Smržových**, **Jetřichovická**. Stanoviště v květnu a červnu (další): **Novoborská x Varnsdorfská**, **Habartická**, **U Elektry x Modrého**, **Pod Harfou x Kabešova**, **Nemocniční x U Vysočanského pivovaru**, **Pokorného x Jahodnická**, **Zubrnická x Trmická**, **Děčínská**, **Drahobejlova x U Svobodárny**, **Zakšínská x Zásadská**.
2Dokumenty
Stavební řízení

2. března 2026 — JES - Přístřešek a informační totem dobíjecí stanice v areálu PRE, Novovysočanská 696/3

1Body jednání
1
JES - Přístřešek a informační totem dobíjecí stanice v areálu PRE, Libeň
Odbor životního prostředí Úřadu MČ Praha 9 vydal jednotné environmentální stanovisko (JES) k záměru novostavby **přístřešku pro dobíjecí stanici elektromobilů** a **informačního totemu** v areálu **PRE**. Záměr je situován na adrese **Novovysočanská 696/3** na pozemcích **parc. č. 4036/3** a **4036/7** v **k.ú. Libeň**, **Praha 9**. Součástí projektu je řešení hospodaření se srážkovými vodami na ploše o rozloze **90 m2**, kde budou dešťové vody odváděny do stávajícího **vsakovacího příkopu** se zasakovacími bloky **Garantia Rain Block**. Investorem akce je společnost **Pražská energetika, a.s.** a projektovou dokumentaci zpracovala společnost **HRAD, spol. s r.o.** (**Ing. arch. Ivan Retter**).
Rozhodnutí: Odbor životního prostředí **vydává souhlasné jednotné environmentální stanovisko**. Záměr je z hlediska vlivů na životní prostředí **přípustný**.
2Dokumenty
Stavební řízení

2. března 2026 — JES - Nástavba části "B" RD Smrková 1083/4

1Body jednání
1
Souhlasné jednotné environmentální stanovisko - nástavba RD Smrková 1083/4
Odbor životního prostředí Úřadu MČ Praha 9 vydal souhlasné jednotné environmentální stanovisko (JES) k záměru **nástavby části „B“ rodinného domu č.p. 1083** na adrese **Smrková 1083/4**, situovaného na pozemku **parc. č. 2110/23** v **k.ú. Hloubětín**, Praha 9. Projekt počítá s jednopodlažní nástavbou nad stávajícím 1.NP a 1.PP severovýchodní části domu. Srážkové vody budou odváděny do stávající podzemní akumulační nádoby o objemu **10 m3** s bezpečnostním přepadem do vsakovacího bloku o ploše **10 m2**. V dokumentu je rovněž zmíněn sousední pozemek **parc. č. 2110/3** v **k.ú. Hloubětín**, který náleží do zemědělského půdního fondu. Projektovou dokumentaci zpracovala společnost **Borabela Design, s.r.o.** (**Ing. Michal Lenoch**, **Ing. Lukáš Loudil**, **Ing. Roman Netušil**).
Rozhodnutí: Odbor životního prostředí Úřadu Městské části Praha 9 **vydává souhlasné** jednotné environmentální stanovisko. Záměr je z hlediska vlivů na všechny dotčené složky životního prostředí **přípustný**.
2Dokumenty
Záměry obce

2. března 2026 — Výběrové řízení na pronájem NJ 1413/103, ul. Drahobejlova č.o. 41, k.ú. Libeň

1Body jednání
1
Výběrové řízení na pronájem NJ 1413/103, ul. Drahobejlova, k.ú. Libeň
Městská část **Praha 9** zveřejňuje záměr na pronájem nebytové jednotky **č. 1413/103** o výměře **26,30 m2**, která se nachází v **1.NP** domu **č.p. 1413**, ul. **Drahobejlova č.o. 41**, **k.ú. Libeň**. Prostor je určen k využití jako **kancelář** na dobu **neurčitou**. Minimální výše nájemného je stanovena na **2.800,- Kč/m2/rok** (bez DPH a služeb). Podmínkou je složení kauce ve výši **trojnásobku měsíčního nájemného**. Případná rekolaudace a stavební úpravy jsou na náklady nájemce. Přihlášky se podávají v zalepené obálce na podatelnu **ÚMČ Praha 9**, **Sokolovská 14/324**, **180 49 Praha 9 - Vysočany** nejpozději do konce doby zveřejnění.
1Dokumenty
Doprava

1. března 2026 — OOP_Kovanecká - zrušení ZPS + zřízení cykloobousměrky

1Body jednání
1
Místní úprava provozu v ulici Kovanecká: zrušení ZPS a zřízení cykloobousměrky
Úřad městské části **Praha 9** stanovuje trvalou změnu místní úpravy provozu v ulici **Kovanecká**, konkrétně v úseku mezi ulicemi **Kovářská** a **U Školičky**. Hlavním cílem opatření je zrušení zóny placeného stání (**ZPS**) v tomto úseku, aby byl zajištěn dostatečný prostor pro průjezd vozidel zásobování a svozu odpadu k **UNYP Aréně** a zamezilo se ničení okolní zeleně. Na základě námitek **Magistrátu hl. m. Prahy** bylo do návrhu doplněno zřízení **cykloobousměrky** (povolení vjezdu cyklistů v protisměru). Realizace značení (montáž značek **E12a**, **E12b**, **B28**, **B11** a zrušení vodorovného značení **V10g**) proběhne od **března 2026**.
Rozhodnutí: Úřad městské části **Praha 9** vydává opatření obecné povahy, kterým **stanovuje** místní úpravu provozu na pozemní komunikaci **Kovanecká** dle předložené dokumentace s platností od **března 2026**.
2Dokumenty
Doprava

1. března 2026 — Opatření obecné povahy - přechodná úprava provozu ul. Novoškolská (výkop elektro)

1Body jednání
1
Přechodná úprava provozu - ul. Novoškolská
Opatření obecné povahy o stanovení přechodné úpravy provozu na pozemní komunikaci v ulici **Novoškolská** v **k.ú. Vysočany**, správní obvod **Praha 9**. Omezení se týká úseku **Novoškolská – Zákostelní** a je vyvoláno z důvodu **obnovy kabelů NN**. Práce budou probíhat ve dvou etapách: **1. etapa (1. 3. 2026 – 31. 3. 2026)** a **2. etapa (1. 4. 2026 – 30. 4. 2026)**. Žadatelem je společnost **KORMAK Praha a.s.** (IČ: 485 92 307) se sídlem **náměstí Bratří Jandusů 34/34, Praha 10**, zastupující investora **PREdistribuce, a.s.** se sídlem **Svornosti 3199/19a, Praha 5**. Součástí opatření je umístění přenosného dopravního značení a zajištění bezpečného pohybu pěších pomocí **provizorních lávek**.
Rozhodnutí: Odbor dopravy Úřadu městské části Praha 9 **vydává** opatření obecné povahy a **stanovuje** přechodnou úpravu provozu v ulici **Novoškolská** v termínu od **1. 3. 2026** do **30. 4. 2026**.
4Dokumenty
Doprava

1. března 2026 — OOP_přechodná úprava_U Vinných sklepů x Na Jetelce_2025 - 2026

1Body jednání
1
Přechodná úprava provozu - U Vinných sklepů a Na Jetelce
Opatření obecné povahy stanovující **přechodnou úpravu provozu** v ulicích **U Vinných sklepů** a **Na Jetelce** na území **Praha 9**, **k.ú. Vysočany**. Úprava spočívá v umístění přenosného dopravního značení (**zákaz zastavení B28** v ul. **U Vinných sklepů** a **zóna s dopravním omezením IZ 8a, IZ 8b** v ul. **Na Jetelce**) z důvodu neoprávněně parkujících vozidel v křižovatce a na zeleni. Opatření je stanoveno v termínu od **01.03.2026** do **28.02.2027**.
Rozhodnutí: Úřad městské části **Praha 9** **vydává** opatření obecné povahy – stanovení přechodné úpravy provozu na pozemních komunikacích **U Vinných sklepů** a **Na Jetelce** v termínu **01.03.2026 – 28.02.2027**.
2Dokumenty
Stavební řízení

27. února 2026 — Rozhodnutí - povolení stavby: FTTH Vodafone Praha 9 - Vysočany, lokalita 10|

1Body jednání
1
Povolení stavby: FTTH Vodafone Praha 9 - Vysočany, lokalita 10
Stavební úřad povoluje záměr společnosti **Vodafone Czech Republic a.s.** na výstavbu podzemního komunikačního vedení (optické sítě) o délce **1705 m**. Stavba zahrnuje uložení mikrotrubiček a instalaci **7 nových kabelových komor (KK1-KK7)** v lokalitě **Vysočany**. Trasa vede ulicemi **U Vysočanského pivovaru**, **Nemocniční**, **Kolbenova**, **Pod Pekárnami**, **Zbuzkova**, **Krátkého**, **Rubeška**, **Podnádražní**, **Paříkova**, **Sokolovská** a **Na Břehu**. Dotčeny jsou pozemky **parc. č. 260, 268, 283, 284/2, 293/11, 1940, 1944, 1945/1, 1946, 1948/1, 1948/20, 1948/21, 1950, 1958, 1965/1, 2087/1, 2099** v **k.ú. Vysočany**. Součástí jsou i konkrétní umístění u objektů **č.p. 270 (Sokolovská)**, **č.p. 340 (Paříkova)**, **č.p. 285 (Zbuzkova)**, **č.p. 161 a 162 (Pod Pekárnami)**, **č.p. 658 (Kolbenova)** a **č.p. 422 a 423 (U Vysočanského pivovaru)**.
Rozhodnutí: Úřad městské části Praha 9 **povoluje** záměr „FTTH Vodafone Praha 9 - Vysočany, lokalita 10“ na výše uvedených pozemcích a stanovuje podmínky pro provedení stavby.
1Dokumenty
Doprava

26. února 2026 — OOP_ ul. Bukačova a ul. Pod Harfou, Polyfunkční soubor Poděbradská

1Body jednání
1
Stanovení místní úpravy provozu v ul. Bukačova a ul. Pod Harfou
Úřad městské části **Praha 9**, odbor dopravy, stanovuje trvalou místní úpravu provozu v ulicích **Bukačova** a **Pod Harfou** v **k.ú. Vysočany**. Úprava je realizována v souvislosti s dokončením objektů **A** a **B** v rámci projektu **Polyfunkční soubor Poděbradská**. Změna spočívá v instalaci svislého dopravního značení **B1** (zákaz vjezdu všech vozidel) doplněného o dodatkovou tabulku **E13** s textem „**Mimo IZS**“, aby se zamezilo vjezdu motorových vozidel na plochy určené pro pěší. Žadatelem je společnost **CENTRAL GROUP 63. investiční s.r.o.**, se sídlem **Na Strži 1702/65, Praha 4**, IČ **062 39 714**. Dokumentace dále zmiňuje přilehlé ulice **Kabešova** a **Poděbradská**.
Rozhodnutí: Úřad městské části **Praha 9** **vydává** opatření obecné povahy, kterým **stanovuje** trvalou místní úpravu provozu na pozemních komunikacích **Bukačova** a **Pod Harfou** spočívající v umístění svislého dopravního značení.
2Dokumenty
Záměry obce

26. února 2026 — Záměr pronájmu části pozemku parc. č. 1789 k.ú. Vysočany

1Body jednání
1
Záměr pronájmu části pozemku parc. č. 1789 k.ú. Vysočany
Městská část Praha 9 zveřejňuje záměr pronájmu části pozemku **parc. č. 1789** (ovocný sad) o výměře **1 m2** v **k.ú. Vysočany**, který je zapsán na **LV č. 715**. Budoucím nájemcem je společnost **Czech Outdoor s.r.o.** (IČO: **24199427**) se sídlem **Na strži 2097/63, Krč, 140 00 Praha 4 - Krč**. Účelem nájmu je umístění reklamního zařízení o rozměru výlepové plochy **600x300 cm**. Nájemní vztah je plánován na dobu určitou do **31.12.2035**.
1Dokumenty
Stavební řízení

26. února 2026 — vyrozumění o zahájení řízení - stanoviska: Rekonstrukce kanalizace Střížkovská, Praha 8,

1Body jednání
1
Rekonstrukce kanalizace Střížkovská, Praha 8
Úřad městské části Praha 8 vyrozumívá o zahájení řízení k záměru **„Rekonstrukce kanalizace Střížkovská, Praha 8, číslo investiční akce PD_11Q7600“**. Předmětem je rekonstrukce a přeložka stávající stoky jednotné kanalizace v ulicích **Střížkovská** a **Teplická** v **k. ú. Střížkov** a přeložka plynovodu STL PE 90. Záměr je realizován na pozemcích **parc. č. 486/1, 540, 541, 573/2, 676/18, 842/2, 76/67** v **k. ú. Střížkov**. Řízení se přímo dotýká vlastníků sousedních pozemků **parc. č. 29, 27, 28/1, 28/2, 26, 71, 70, 496/145, 542/1, 496/38, 76/54, 76/74, 76/81, 76/80, 76/79, 79/78, 79/77, 79/76, 79/75, 76/61, 76/65, 68, 104, 102** v **k. ú. Střížkov**. Mezi účastníky řízení s adresami v dotčené lokalitě patří například osoby na adresách **Jitravská 579/15**, **Jitravská 579/13**, **Jitravská 579/17**, **Jitravská 566/14**, **Teplická 282/16** a **Teplická 279/22**. Účastníci mohou uplatnit námitky do 15 dnů.
1Dokumenty