Věci Obecní

Detail

Dokument

Praha 7

Hlavní město Praha

U průhonu 1338, 17000 Praha 7
Web obce ↗
Stavební řízení

18. března 2026 — Jednotné environmentální stanovisko - Stavební úpravy střešních oken nad uliční fasádou v bytovém domě Sochařská 356/13, Praha 7 - Bubeneč

1Body jednání
1
Jednotné environmentální stanovisko - Stavební úpravy střešních oken nad uliční fasádou v bytovém domě Sochařská 356/13, Praha 7 - Bubeneč
Úřad městské části Praha 7 vydal **souhlasné jednotné environmentální stanovisko** pro stavební záměr zahrnující úpravu střešních oken v bytovém domě na adrese **Sochařská 356/13**, **Praha 7 - Bubeneč**, na pozemku **parc. č. 479** v **k. ú. Bubeneč**. Projekt počítá s vybouráním šesti stávajících střešních oken (včetně těch ve vikýři) a jejich nahrazením novými ateliérovými a střešními okny. Záměr byl posouzen jako přípustný z hlediska vlivů na složky životního prostředí, zejména z pohledu **odpadového hospodářství**, kde byla produkce odpadů vyhodnocena jako málo významná.
Rozhodnutí: Vydáno **souhlasné jednotné environmentální stanovisko**.
1Dokumenty
Stavební řízení

18. března 2026 — Jednotné environmentální stanovisko - Modernizace střešního pláště BD Na Ovčinách 970/4, Praha 7 - Holešovice

1Body jednání
1
Jednotné environmentální stanovisko - Modernizace střešního pláště BD Na Ovčinách 970/4, Praha 7 - Holešovice
Předmětem záměru je **modernizace střešního pláště** bytového domu na adrese **Na Ovčinách 970/4**, **Praha 7 - Holešovice**, situovaného na pozemku **parc. č. 1261** v **k. ú. Holešovice**. Projekt zahrnuje rekonstrukci střechy nad 7. NP, opravu hydroizolace z asfaltových pásů, instalaci tepelné izolace, opravu omítky strojovny výtahu a komínů, dozdění nefunkčních komínů, opravu světlíků a osazení nových klempířských prvků. Záměr nemění účel užívání stavby, její vnější vzhled, zastavěnou plochu ani objem.
Rozhodnutí: Úřad městské části Praha 7 vydal **souhlasné jednotné environmentální stanovisko** pro uvedený záměr.
1Dokumenty
Stavební řízení

17. března 2026 — Jednotné environmentální stanovisko - Změna dokončené budovy – Veverkova 1171/31, Praha 7

1Body jednání
1
Jednotné environmentální stanovisko - Změna dokončené budovy – Veverkova 1171/31, Praha 7
Záměr se týká **změny dokončené budovy** na adrese **Veverkova 1171/31, Praha 7**, která se nachází na pozemku **parc. č. 1654 v k. ú. Holešovice**. Projekt navrhuje **půdní vestavbu a nástavbu**, díky které vzniknou **3 nové byty**. Dojde k navýšení hřebene střechy o **40 cm**, instalaci střešních oken, světlíků a vybudování **střešní terasy** v 8. NP a **dvou balkonů** v 7. NP. Součástí je také přístavba **panoramatického výtahu** ve dvoře a vybudování **retenční nádrže** na dešťové srážky o objemu **5,0 m3**. Stavebníkem je společnost **Půdy Veverkova s.r.o.**
Rozhodnutí: Úřad městské části Praha 7 vydal **souhlasné jednotné environmentální stanovisko**. Realizace záměru je podmíněna splněním **5 podmínek**, které se týkají především správy a údržby **retenční nádrže** a zákazu používání **drtičů kuchyňských odpadků** v objektu.
1Dokumenty
Doprava

16. března 2026 — OOP_Tusarova_u._Na_Maninach_V_Haji_16.3.-15.5.2026.pdf

1Body jednání
1
Stanovení přechodné úpravy provozu v ulici Tusarova
Městská část Praha 7 stanovuje **přechodnou úpravu provozu** na místní komunikaci v ulici **Tusarova** v úseku **Na Maninách – V Háji**. Důvodem je **obnova vodovodního řadu**, kterou provádí žadatel **KSK Praha-inženýrské stavby s.r.o.** Opatření spočívá v umístění dopravního značení v termínu od **16. 03. 2026** do **15. 05. 2026**.
Rozhodnutí: Úřad městské části Praha 7 **vydává opatření obecné povahy** o stanovení přechodné úpravy provozu na pozemní komunikaci **Tusarova**.
2Dokumenty
Doprava

16. března 2026 — OOP_Na_Maninach_22_stavebni_ohrada_autojerab_16.3.-31.12.2026.pdf

1Body jednání
1
Přechodná úprava provozu - Na Maninách 22 (stavební ohrada, autojeřáb)
Stanovení přechodné úpravy provozu v ulici **Na Maninách** v blízkosti objektu č. p. **22** (**č. p. 900**) v **k.ú. Holešovice** (**Praha 7**). Omezení je navrženo z důvodu umístění **stavební ohrady**, **autojeřábu** a **zařízení staveniště** v rámci projektu **BD Maniny** (investor **Konsit a.s.**). Úprava bude probíhat v termínu od **16. 3. 2026** do **31. 12. 2026** v etapách č. **7-12**. Dotčené pozemky zahrnují komunikace a přilehlé plochy na parcelách **parc. č. 900, 890/1, 891/2, 901, 902, 903, 904, 905/1, 905/2, 911, 912, 1002/1, 1002/2, 1003, 1004/1, 1012/1, 1012/2, 1012/3, 1012/4, 1891/1** v **k.ú. Holešovice**. Žadatelem je společnost **DIO Consult Prague s.r.o.** (IČ: **099 20 871**).
Rozhodnutí: Úřad městské části Praha 7 **vydává** opatření obecné povahy a **stanovuje** přechodnou úpravu provozu na místní komunikaci **Na Maninách** v rozsahu dle přiložené dokumentace v termínu od **16. 3. 2026** do **31. 12. 2026**.
2Dokumenty
Doprava

16. března 2026 — OOP_Malirska_1_skladka_materialu_kontejner_16.3.-31.5.2026.pdf

1Body jednání
1
Přechodná úprava provozu - ulice Malířská (skládka materiálu a kontejner)
Stanovení přechodné úpravy provozu v ulici **Malířská** v **Praze 7** z důvodu umístění **skládky materiálu a kontejneru** u objektu **Malířská 1**. Opatření se týká úseků v blízkosti křižovatky s ulicí **Veletržní**. Součástí je zábor chodníku pro stavební lešení a zábor komunikace pro zařízení stavby. Akce proběhne v termínu od **16. 3. 2026 do 31. 5. 2026** (ve třech etapách). Žadatelem je společnost **SL5 s.r.o.** (se sídlem **Tusarova 791/31**) zastoupená firmou **Fasaservis s.r.o.** (se sídlem **Pujmanové 884/21**). Dotčené pozemky a lokality: **Malířská 1**, **Veletržní 46**, **parc. č. 291/4, 290/42, 562/1, 333/48, 825/65, 824/67, 823/69, 821/71, 820/73, 819/75, 749/77, 1613/54a, 398/3, 335/5, 319/4, 334/3, 386/1, 290/2, 333/2, 386/44, 562/50, 826/63, 826/61**.
Rozhodnutí: Úřad městské části Praha 7 **vydává** opatření obecné povahy, kterým **stanovuje** přechodnou úpravu provozu spočívající v umístění dopravního značení a zařízení na místní komunikaci **Malířská**.
2Dokumenty
Doprava

16. března 2026 — OOP_Komunardu_x_U_pruhonu_kontejner_stani_techniky_16.3.-27.3.2026.

1Body jednání
1
Přechodná úprava provozu v ulici Komunardů
Opatření obecné povahy o stanovení přechodné úpravy provozu na pozemní komunikaci v ulici **Komunardů** na nároží s ulicí **U Průhonu** v **Praze 7**. Důvodem je zajištění prostoru pro **umístění techniky a kontejneru**. Přechodné dopravní značení bude instalováno v termínu od **16. 03. 2026** do **27. 03. 2026**. Žadatelem je společnost **S com s.r.o.**, se sídlem **Františka Diviše 1534/5**, **104 00 Praha 10, Uhříněves**.
Rozhodnutí: Úřad městské části Praha 7 **vydává** opatření obecné povahy o stanovení přechodné úpravy provozu spočívající v umístění dopravního značení a zařízení na místní komunikaci **Komunardů** v rozsahu dle přiložené dokumentace.
2Dokumenty
Záměry obce

16. března 2026 — Oznámení o zveřejnění záměru - uzavření nové nájemní smlouvy na pronájem nebytové jednotky č. 346/101, Praha 7

1Body jednání
1
Záměr pronájmu nebytových prostor v ul. Dukelských hrdinů 346/9, Praha 7
Městská část **Praha 7** zveřejňuje záměr uzavřít novou nájemní smlouvu na pronájem **nebytové jednotky č. 346/101** (34,90 m²) a **nebytové jednotky č. 346/102** (56,90 m²) na adrese **Dukelských hrdinů 346/9, Praha 7**. Nájemcem má být pan **Zdeněk Nágl** (IČO: **10166971**), účelem užívání je **instalatérství a železářství**. Smlouva má být uzavřena na dobu určitou do **31.03.2033**. Nájemné je stanoveno na **5 235 Kč/měsíc** za jednotku **346/101** a **8 535 Kč/měsíc** za jednotku **346/102** (v obou případech **1 800 Kč/m2/rok**). Zájemci se mohou k záměru vyjádřit do **16.03.2026**.
1Dokumenty
Stavební řízení

16. března 2026 — Vyrozumění o předání spisu a pokračování v řízení - Bytový dům Southern Hill

1Body jednání
1
Vyrozumění o předání spisu a pokračování v řízení - Bytový dům Southern Hill
Stavební úřad **Praha 7** informuje o převzetí spisu od stavebního úřadu **Praha 6** a pokračování v řízení o změně územního rozhodnutí a vydání stavebního povolení pro projekt **„Bytový dům Southern Hill“**. Jedná se o novostavbu bytového domu v lokalitě **Břevnov**, konkrétně v ulicích **Talichova**, **Kusá** a **Ve Střešovičkách**. Záměr je umístěn na pozemcích parc. č. **229/1**, **244/21**, **244/22**, **244/27**, **244/44**, **244/49**, **244/50**, **452**, **454**, **455**, **3660/1**, **3660/2**, **3663/1** a **3775** v katastrálním území **Břevnov**. Účastníci řízení se mohou vyjádřit k nově doplněným podkladům, včetně znaleckého posudku a souhlasu vlastníka pozemku parc. č. **244/21**, ve lhůtě **15 dnů**. Do podkladů lze nahlédnout na adrese stavebního úřadu **U Průhonu 1338/38, Praha 7**.
1Dokumenty
Stavební řízení

16. března 2026 — Vyrozumění o zahájení řízení - Zateplení bytového domu na pozemku parc. č. 959 v katastrálním území Holešovice

1Body jednání
1
Zateplení bytového domu na pozemku parc. č. 959 v k.ú. Holešovice
Stavební úřad Prahy 7 oznamuje zahájení řízení o povolení záměru **„Zateplení bytového domu“**. Předmětem řízení je zateplení západního průčelí bytového domu **č.p. 1780**, který je součástí vnitrobloku, na pozemku **parc. č. 959** v katastrálním území **Holešovice**. V rámci stavebních úprav dojde také k výměně výplní otvorů. Žadateli jsou **Mgr. Matěj Zeithaml**, **Jan Březina** a **Lucie Utzeri**.
1Dokumenty
Záměry obce

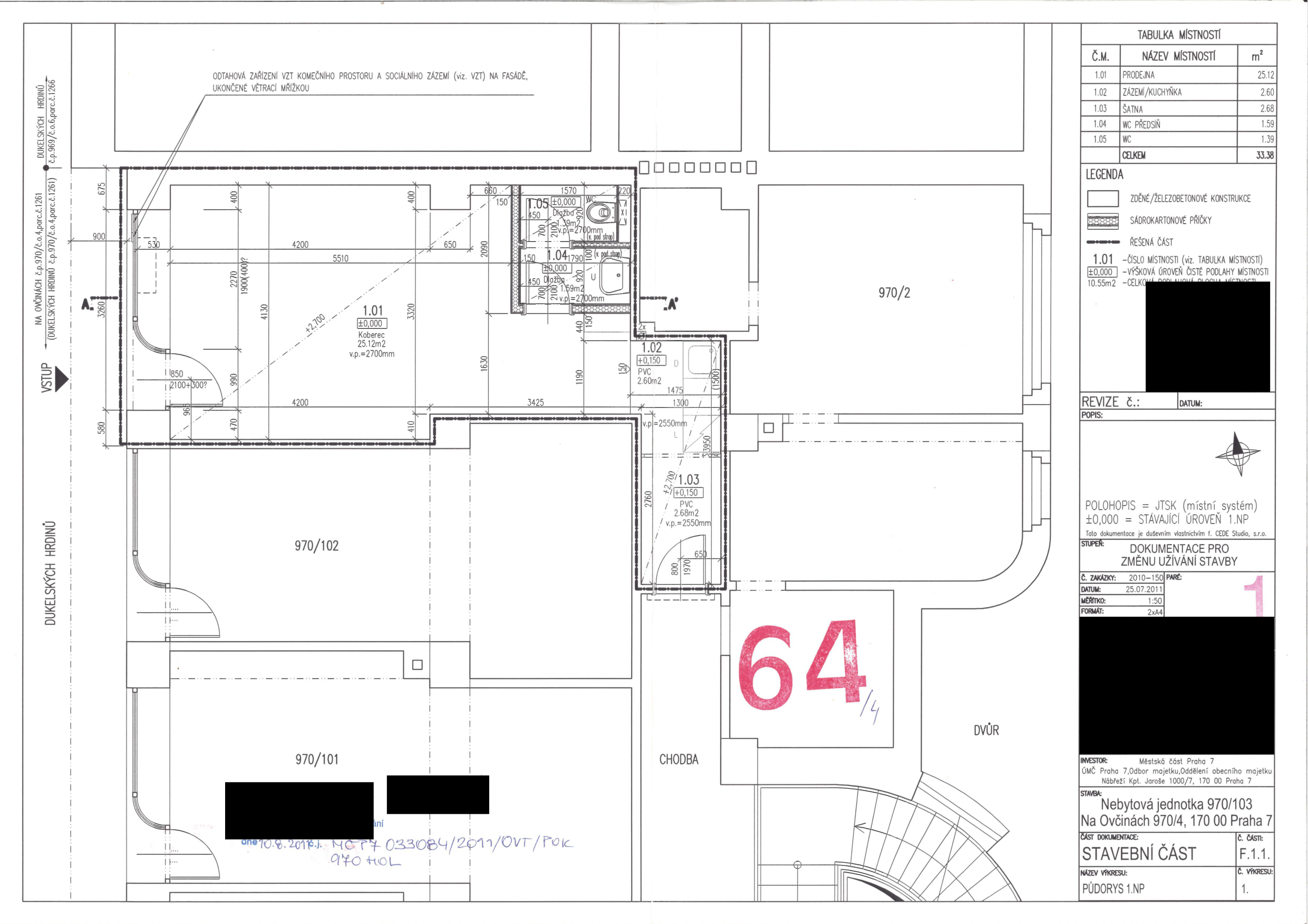
16. března 2026 — Oznámení o zveřejnění záměru soutěže č. OMA-N-013 -2026 - pronájem nebytové jednotky č. 970/103 v domě č.p. 970, Na Ovčinách 4, v k.ú. Holešovice, o velikosti 34,73 m², v 1. NP

1Body jednání
1
Záměr pronájmu nebytové jednotky Na Ovčinách 4
Městská část **Praha 7** zveřejňuje záměr soutěže č. **OMA-N-013-2026** na pronájem **nebytové jednotky č. 970/103** nacházející se v domě **č.p. 970** na adrese **Na Ovčinách 4**, **k.ú. Holešovice**. **Parametry pronájmu:** - Velikost jednotky: **34,73 m²** - Umístění: **1. NP** - Účel užívání: **prodejna** (v minulosti schváleno jako prodejna textilu) - Doba nájmu: **7 let** - Minimální nájemné: **11.287,25 Kč/měsíc** (tj. **3.900 Kč/m²/rok**) - Kauce: **11.000 Kč** Součástí dokumentace je i souhlas se změnou v užívání stavby z roku 2011 a výkresová dokumentace, která identifikuje objekt na pozemku **parc. č. 1261**.
4Dokumenty
2Obrázky
Doprava

16. března 2026 — OOP_Delnicka_11_stavebni_ohrada_koridor_pro_chodce_16.3.2026-15.3.2027.

1Body jednání
1
Stanovení přechodné úpravy provozu v ulici Dělnická
Opatření obecné povahy o stanovení přechodné úpravy provozu v ulici **Dělnická** v **Praze 7 - Holešovicích**. Důvodem je zajištění bezpečnosti a realizace stavby „**DĚLNICKÁ 11 – DEMOLICE ČÁSTI OBJEKTU**“ na adrese **Dělnická 11 (č.p. 264/11)**. Opatření zahrnuje umístění stavební ohrady, zřízení koridoru pro pěší ze zábran **Z 2** v délce **40 m** a instalaci přechodného dopravního značení (včetně zákazu zastavení **B 28**). Omezení se týká okolí křižovatek s ulicemi **Argentinská**, **Tusarova**, **Jateční**, **Osadní** a **Komunardů** v katastrálním území **Holešovice**. Platnost opatření je stanovena od **16. 3. 2026** do **15. 3. 2027**.
Rozhodnutí: Úřad městské části **Praha 7**, odbor dopravy, **vydává** opatření obecné povahy a **stanovuje** přechodnou úpravu provozu na místní komunikaci **Dělnická** v rozsahu dle přiložené dokumentace v termínu **16. 3. 2026 – 15. 3. 2027**.
2Dokumenty
Doprava

15. března 2026 — OOP_Kostelni_22_PL_skl._mat._kontejner_15.3.-15.6.2026.

1Body jednání
1
Přechodná úprava provozu - Kostelní 22, Praha 7
Odbor dopravy MČ Praha 7 stanovuje přechodnou úpravu provozu v ulici **Kostelní** před domem **č.p. 363/22** v termínu od **15. 03. 2026** do **15. 06. 2026**. Důvodem je **oprava fasády**, umístění **skládky materiálu**, **kontejneru** a **podchozího lešení**. Žadatelem je společnost **TRANGO s.r.o.**. Zábor zahrnuje plochu pro lešení o rozměrech **19 x 1 m** a plochu pro potřeby stavby o rozměrech **10 x 2 m**. V místě bude osazeno přechodné dopravní značení, včetně značek **B28 (zákaz zastavení)** s dodatkovou tabulkou, které musí být instalovány minimálně **7 dní předem** (v úseku před objekty **Kostelní 362/20, 363/22, 952/24 a 364/26**).
Rozhodnutí: Úřad městské části Praha 7 **vydává** opatření obecné povahy, kterým **stanovuje** přechodnou úpravu provozu v ulici **Kostelní** v rozsahu přiložené dokumentace pro období od **15. 03. 2026** do **15. 06. 2026**.
2Dokumenty
Doprava

14. března 2026 — _United_Finders_nataceni_Za_Elektrarnou_14.3._21.3.2026.

1Body jednání
1
Stanovení přechodné úpravy provozu v ulici Za Elektrárnou
Opatření obecné povahy o stanovení přechodné úpravy provozu na místní komunikaci **Za Elektrárnou** v úseku ulic **Holešovické nábřeží** – **Za Císařským mlýnem** v **Praze 7**. Omezení je vyžádáno společností **United Finders s.r.o.** (IČ: **093 59 575**) z důvodu natáčení seriálu „**GAT**“. Úprava spočívá v umístění přechodného svislého dopravního značení **B28**, **E13**, **E8d**, **E8e** (zákaz zastavení s dodatkovými tabulkami). Součástí je také dočasné přidržení dopravy na záběr po dobu max. **3 minut**. Dotčené lokality zahrnují i okolí objektů **Císařský ostrov**, **Bubenečský tunel** a **Stromovka**.
Rozhodnutí: Úřad městské části **Praha 7** **vydává** opatření obecné povahy o stanovení přechodné úpravy provozu v ulici **Za Elektrárnou** platné pro dny **14. 03. 2026** a **21. 03. 2026**.
2Dokumenty
Stavební řízení

13. března 2026 — Vyrozumění o podaném odvolání - Stavební úprava části objetu č.p. 659 ve 2.NP za účelem změny v užívání na restauraci Lokáda“, Praha 7 – Holešovice, č.p. 659, U průhonu 1

1Body jednání
1
Vyrozumění o podaném odvolání - restaurace Lokáda
Stavební úřad informuje o podaném odvolání pana **Igora Zahradníka** proti rozhodnutí o povolení stavby „Stavební úprava části objektu **č.p. 659** ve 2.NP za účelem změny v užívání na restauraci **Lokáda**“, na adrese **U průhonu 1**, **Praha 7 – Holešovice**, na pozemku **parc. č. 773/60** v katastrálním území **Holešovice**. Stavebníkem je společnost **ACS Praha 7, a.s.** Odvolatel namítá narušení pohody bydlení, hlukové emise, nedostatečné řešení vzduchotechniky a pachových filtrů a zvýšený dopravní provoz v **areálu TJ LOKOMOTIVA PRAHA**. Účastníci řízení se mohou k odvolání vyjádřit do **10 dnů**.
2Dokumenty
Záměry obce

13. března 2026 — Oznámení o zveřejnění záměru - uzavření nájemní smlouvy na pronájem nebytového p rostoru č. 111, o rozloze 48,01 m ², na adrese Milady Horákové 851/84, Praha 7.

1Body jednání
1
Záměr pronájmu nebytového prostoru č. 111 na adrese Milady Horákové 851/84
Městská část **Praha 7** zveřejňuje záměr uzavření nájemní smlouvy na pronájem **nebytového prostoru č. 111** o rozloze **48,01 m²** v objektu na adrese **Milady Horákové 851/84, Praha 7**. Nájemcem má být spolek **ALTÁN ART, z.s.** (IČO: 22753966). Účelem nájmu je **sklad**. Nájemné je stanoveno na **3.600,75 Kč/měsíc** (tj. 900,- Kč/m²/rok) bez DPH. Smlouva má být uzavřena na **dobu neurčitou** s výpovědní dobou 4 měsíce (bez součinnosti) nebo 2 měsíce (se součinností). Záměr vychází z usnesení Majetkové komise č. 396/26-MK ze dne 02.03.2026.
1Dokumenty
Záměry obce

13. března 2026 — Oznámení o zveřejnění záměru - uzavření nové nájemní smlouvy na pronájem ga ráže č. 103, o rozloze 18 m ², v objektu bez č.p./č.e. na pozemku parc. č. 1637/4 v k.ú. Holešovice, vjezd domem Veletržní 1

1Body jednání
1
Záměr pronájmu garáže č. 103 v k.ú. Holešovice
Městská část Praha 7 zveřejňuje záměr uzavření nové nájemní smlouvy na pronájem **garáže č. 103** o rozloze **18 m²**. Garáž se nachází v objektu bez č.p./č.e. na pozemku **parc. č. 1637/4** v **k.ú. Holešovice**. Vjezd do objektu je veden skrze dům na adrese **Veletržní 1396/39, Praha 7**. Nájemcem má být paní **Monika Šeredová**. Nájemní smlouva je navrhována na dobu určitou do **31.03.2033** za nájemné ve výši **3.780 Kč/měsíc** bez DPH. Záměr byl projednán Majetkovou komisí dne **02.03.2026**.
1Dokumenty
Záměry obce

13. března 2026 — Oznámení o zveřejnění záměru - uzavření nové nájemní smlouvy na pronájem nebytové jednotky č. 133/106, o rozloze 38,09 m ², s účelem užívání jako kancelář, na adrese U Letenského sadu 133/7, Praha 7.

1Body jednání
1
Záměr pronájmu nebytové jednotky U Letenského sadu 133/7
Městská část Praha 7 zveřejňuje záměr uzavření nové nájemní smlouvy na pronájem **nebytové jednotky č. 133/106** o rozloze **38,09 m²** (využití jako kancelář). Nemovitost se nachází na adrese **U Letenského sadu 133/7, Praha 7**. Nájemcem má být **Mgr. Karel Walter Körber** (IČO: 18659489), smlouva na dobu určitou do **31.08.2033**. Nájemné je stanoveno do 31.07.2026 ve výši **5.156,- Kč/měsíc** a od 01.08.2026 ve výši **10.856,- Kč/měsíc** bez DPH.
1Dokumenty
Stavební řízení

13. března 2026 — Jednotné environmentální stanovisko - Výstavba kabelových připojení kamerových bodů v lokalitě metra Nádraží Holešovice, Praha, Holešovice

1Body jednání
1
Jednotné environmentální stanovisko - Výstavba kabelových připojení kamerových bodů v lokalitě metra Nádraží Holešovice
Předmětem záměru je **výstavba kabelových připojení kamerových bodů** v lokalitě **metra Nádraží Holešovice** v k. ú. **Holešovice**. Záměr zahrnuje umístění **kamerového sloupu výšky 3,5 m** a **kabelové vedení** vedené výkopem v **délce 58 m** na pozemku **parc. č. 186/1**. Vedení bude napojeno do stávajícího přípojného místa v budově nádraží v **místnosti č. 343 – MSR2**. Stavebníkem je **Dopravní podnik hl. m. Prahy, a.s.** Záměr je z hlediska vlivů na životní prostředí přípustný bez podmínek a nedojde k dotčení zeleně ani krajinného rázu.
Rozhodnutí: Úřad městské části Praha 7 vydává **souhlasné jednotné environmentální stanovisko** pro uvedený záměr. Záměr je z hlediska vlivů na životní prostředí **přípustný bez podmínek**.
1Dokumenty
Stavební řízení

13. března 2026 — Jednotné environmentální stanovisko - pro záměr: „Změna užívání nebytové jednotky č. 1632/115, Jankovcova 1632, Praha 7“

1Body jednání
1
Změna užívání nebytové jednotky č. 1632/115, Jankovcova 1632, Praha 7
Úřad městské části Praha 7 vydal souhlasné jednotné environmentální stanovisko pro záměr **Změna užívání nebytové jednotky č. 1632/115** v objektu na adrese **Jankovcova 1632, Praha 7**. Projekt se týká transformace nebytového prostoru na **rehabilitační zařízení**. Záměr je situován na pozemku **parc. č. 581** v **k. ú. Holešovice**. Stavební úpravy zahrnují instalaci nových prosklených příček, SDK podhledů, výměnu podlah a přesun zařizovacích předmětů bez zásahu do nosných konstrukcí budovy.
Rozhodnutí: Vydáno souhlasné jednotné environmentální stanovisko pro záměr.
1Dokumenty