Věci Obecní

Detail

Dokument

Praha-Libuš

Hlavní město Praha

Libušská 35, 14200 Praha 4
Web obce ↗
Doprava

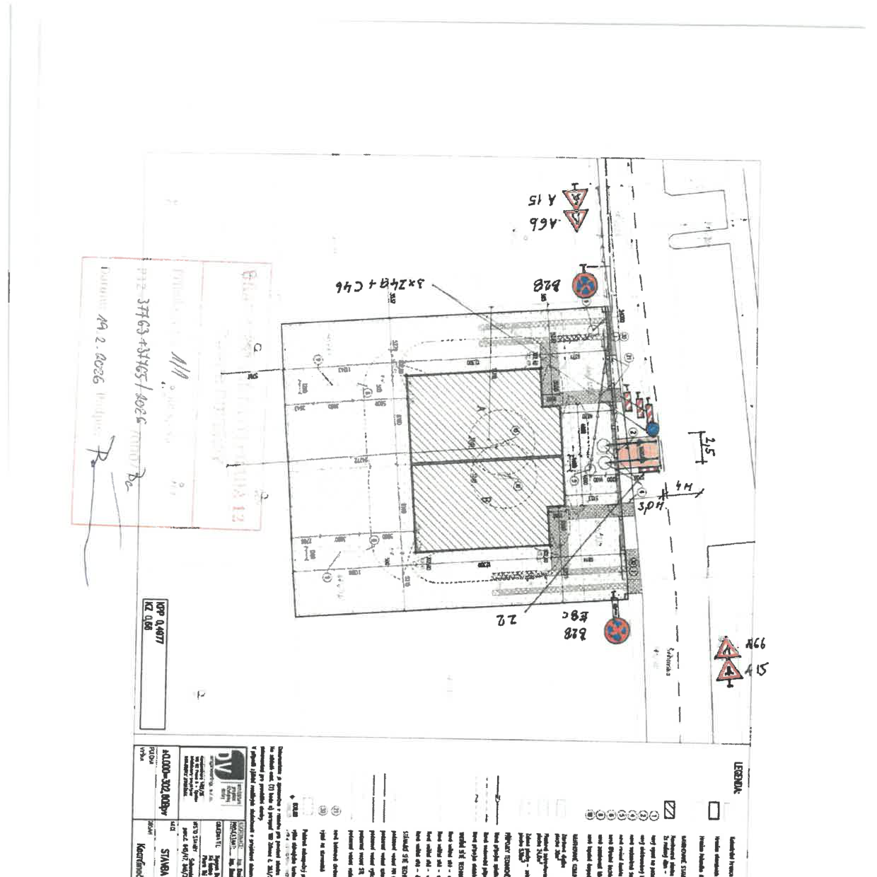
23. února 2026 — MČ Praha 12 - stanovení přechodné úpravy provozu na komunikaci NN7064

1Body jednání
1
MČ Praha 12 - stanovení přechodné úpravy provozu na komunikaci NN7064
Městská část Praha 12 stanovuje **přechodnou úpravu provozu** na komunikaci označené jako **NN7064**. Dokument obsahuje koordinační situaci stavby pro stavební povolení v obvodu **Praha-Libuš**.
Rozhodnutí: Městská část Praha 12 stanovuje přechodnou úpravu provozu na předmětné komunikaci.
1Dokumenty
1Obrázky
Rozpočet

20. února 2026 — MČ Praha-Libuš - Oznámení o zveřejnění rozpočtu MČ Praha-Libuš na rok 2026, finančního plánu ekonomické činnosti MČ Praha-Libuš na rok 2026

1Body jednání
1
Oznámení o zveřejnění rozpočtu a finančního plánu na rok 2026
Městská část **Praha-Libuš** informuje o zveřejnění **rozpočtu MČ Praha-Libuš na rok 2026** a **finančního plánu ekonomické činnosti MČ Praha-Libuš na rok 2026**. Dokumenty jsou k nahlédnutí v sídle úřadu na adrese **Libušská 35, 142 00 Praha 4**.
1Dokumenty
Volná místa

19. února 2026 — MČ Praha-Libuš - Oznámení o prodloužení VŘ - referent - účetní Ekonomického odboru

1Body jednání
1
MČ Praha-Libuš - Oznámení o prodloužení VŘ - referent - účetní Ekonomického odboru
Úřad městské části **Praha-Libuš** oznamuje prodloužení výběrového řízení na obsazení pracovní pozice **referent - účetní Ekonomického odboru**. Oznámení o prodloužení bylo vydáno tajemníkem úřadu, kterým je **Tomáš Hejzlar**.
1Dokumenty
Volná místa

19. února 2026 — MČ Praha-Troja - Oznámení o vyhlášení VŘ - referent/ka evidence obyvatel a voleb

1Body jednání
1
MČ Praha-Troja - Oznámení o vyhlášení VŘ - referent/ka evidence obyvatel a voleb
Městská část **Praha-Troja** vyhlásila výběrové řízení na obsazení pracovní pozice **referent/ka evidence obyvatel a voleb**. Dokument byl zveřejněn na úřední desce městské části **Praha-Libuš** na adrese **Libušská 35, 142 00 Praha 4**.
1Dokumenty
Volná místa

9. února 2026 — MČ Praha-Libuš - Oznámení o vyhlášení výběrového řízení - referent - rozpočtář Ekonomického odboru ÚMČ Praha-Libuš

1Body jednání
1
MČ Praha-Libuš - Oznámení o vyhlášení výběrového řízení - referent - rozpočtář Ekonomického odboru ÚMČ Praha-Libuš
Městská část **Praha-Libuš** vyhlásila výběrové řízení na obsazení pracovní pozice **referent - rozpočtář** pro **Ekonomický odbor ÚMČ Praha-Libuš**. Místem výkonu práce je **Úřad městské části Praha-Libuš** na adrese **Libušská 35, 142 00 Praha 4**.
1Dokumenty
Volná místa

2. února 2026 — MČ Praha-Libuš - Oznámení o vyhlášení výběrového řízení - referent - účetní Ekonomického odboru ÚMČ Praha-Libuš

1Body jednání
1
Výběrové řízení - referent - účetní Ekonomického odboru ÚMČ Praha-Libuš
Městská část **Praha-Libuš** vyhlásila výběrové řízení na obsazení pracovní pozice **referent - účetní Ekonomického odboru** Úřadu městské části Praha-Libuš. Sídlo úřadu se nachází na adrese **Libušská 35, 142 00 Praha 4**.
1Dokumenty
Územní plán

27. ledna 2026 — Středočeský kraj - Oznámení o společném jednání změny č. 17 Zásad územního rozvoje

1Body jednání
1
Oznámení o společném jednání změny č. 17 Zásad územního rozvoje Středočeského kraje
Krajský úřad **Středočeského kraje** oznamuje konání společného jednání o návrhu **změny č. 17 Zásad územního rozvoje (ZÚR)**. Oznámení bylo zveřejněno na úřední desce městské části **Praha-Libuš**.
1Dokumenty
Informace dle §106

27. ledna 2026 — MČ Praha-Libuš - Výroční zpráva dle zák. 106/99 Sb. za rok 2025

1Body jednání
1
Výroční zpráva dle zák. 106/99 Sb. za rok 2025
Městská část **Praha-Libuš** zveřejňuje výroční zprávu o poskytování informací podle zákona č. **106/1999 Sb.** za kalendářní rok **2025**. Dokument uvádí, že informace byly v průběhu roku poskytovány písemně, telefonicky, ústně i e-mailem.
1Dokumenty
Rozpočet

26. ledna 2026 — USNESENÍ ZASTUPITELSTVA č. 2/2026

1Body jednání
1
Schválení rozpočtu MČ Praha-Libuš na rok 2026
Zastupitelstvo schválilo **rozpočet na rok 2026**, který je koncipován jako schodkový s celkovými **příjmy 123 146,00 tis. Kč** a **výdaji 147 239,50 tis. Kč**. Plánovaný **schodek ve výši 24 093,50 tis. Kč** bude kryt z vlastních zdrojů (financování třídy 8). Součástí je také schválení finančního plánu ekonomické činnosti a zmocnění Rady k provádění rozpočtových opatření do výše **600 000 Kč**.
Rozhodnutí: Zastupitelstvo schvaluje rozpočet na rok 2026, finanční plán ekonomické činnosti a zmocnění Rady k provádění rozpočtových opatření.
1Dokumenty
📄
USNESENÍ ZASTUPITELSTVA č. 2/2026
Rozpočet

20. ledna 2026 — MČ Praha-Libuš - Oznámení o zveřejnění schválených rozpočtových opatření v roce 2026

1Body jednání
1
MČ Praha-Libuš - Oznámení o zveřejnění schválených rozpočtových opatření v roce 2026
Městská část **Praha-Libuš** oznamuje v souladu se zákonem o pravidlech rozpočtů územních celků zveřejnění schválených **rozpočtových opatření v roce 2026**. Tato opatření jsou k nahlédnutí v elektronické podobě na internetových stránkách městské části a v listinné podobě v kanceláři finančního odboru Úřadu městské části.
1Dokumenty
Rozpočet

7. ledna 2026 — Usneseni RMC 2026-01-07

1Dokumenty