Věci Obecní

Detail

Dokument

Praha

Hlavní město Praha

Mariánské náměstí 2, 11000 Praha
Web obce ↗
Záměry obce

24. dubna 2026 — pronájem části komunikace parc. č. 3185/12 k.ú. Michle dle přílohy

1Body jednání
1
Pronájem části komunikace Nuselská, k.ú. Michle
Záměr pronajmout **část komunikace Nuselská** na pozemku **parc. č. 3185/12** v **k.ú. Michle**. Účelem pronájmu je umístění **restaurační předzahrádky bez podia** o výměře **9 m²**. Budoucím nájemcem je společnost **AmRest s.r.o.**, a to na období **od 01.06.2026 do 31.10.2026**.
1Dokumenty
Ostatní

24. dubna 2026 — Výzva k odstranění vozidla z komunikace Rakovského, Volkswagen, RZ 5E93318, JENO SALAMON

1Body jednání
1
Výzva k odstranění vozidla Volkswagen (5E93318) z ulice Rakovského
Správa služeb hlavního města Prahy vyzývá provozovatele vozidla značky **Volkswagen**, RZ: **5E93318**, k jeho odstranění z pozemní komunikace na adrese **Rakovského 3138/2, Praha 12**. Vozidlo má více než 6 měsíců propadlou technickou prohlídku. Pokud nebude vozidlo odstraněno do **2 měsíců** od doručení výzvy, bude odtaženo na náklady provozovatele a následně může být prodáno ve veřejné dražbě.
1Dokumenty
Záměry obce

24. dubna 2026 — výpůjčka části komunikace parc. č. 2869/213 k.ú. Krč dle přílohy

1Body jednání
1
Výpůjčka části komunikace Hečkova, k.ú. Krč
Záměr hlavního města Prahy vypůjčit část komunikace v ulici **Hečkova** na pozemku **parc. č. 2869/213** v **k.ú. Krč**. Účelem výpůjčky o výměře **12,5 m²** je zřízení vyhrazeného parkovacího stání pro **držitele průkazu ZTP nebo ZTP/P** (vozidlo RZ **8AT 1939**). Připomínky lze podat do **09.05.2026**.
1Dokumenty
Záměry obce

24. dubna 2026 — pronájem části komunikace parc. č. 2072/5, 2073/1 k.ú. Vršovice dle přílohy

1Body jednání
1
Pronájem části komunikace K Botiči, k.ú. Vršovice
Záměr pronajmout část komunikace **K Botiči** na pozemcích **parc. č. 2072/5** a **2073/1** v **k.ú. Vršovice**. Účelem je stavební zábor pro zařízení staveniště o výměře **194,03 m²**. Budoucím nájemcem je společnost **TREPART s.r.o.** Termín pronájmu je od **01.06.2026** na maximálně jeden rok.
1Dokumenty
Záměry obce

24. dubna 2026 — pronájem části komunikace parc. č. 1081 k.ú. Staré Město dle přílohy

1Body jednání
1
Pronájem části komunikace v ul. Celetná
Záměr pronajmout část komunikace **Celetná** na pozemku **parc. č. 1081** v **k.ú. Staré Město** o výměře **8 m²**. Účelem pronájmu je stavební zábor pro mobilní lešení. Budoucím nájemcem je společnost **AKANT ART, v.o.s.** Termín pronájmu je od **18.05.2026** na dobu maximálně jednoho roku.
1Dokumenty
Nové

24. dubna 2026 — OOP - STANOVENÍ PÚP - HARTIGOVA, DAP, PRAHA 3

5Dokumenty
3Obrázky
Záměry obce

24. dubna 2026 — pronájem části pozemku parc. č. 1431 k.ú. Jinonice dle přílohy

1Body jednání
1
Pronájem části pozemku parc. č. 1431 v k.ú. Jinonice
Záměr hlavního města Prahy pronajmout část komunikace **Souběžná III** na pozemku **parc. č. 1431** v **k.ú. Jinonice**. Účelem nájmu je zřízení **dočasné příjezdové cesty** v ulici **Souběžná III** pro pana **Tomáše Lva**. Pronájem se týká výměry **41 m²** v lokalitě **Praha 5** na období od **13.05.2026** do konce stavby (maximálně na jeden rok).
1Dokumenty
Záměry obce

24. dubna 2026 — pronájem části komunikace parc. č. 2412 k.ú. Nové Město dle přílohy

1Body jednání
1
Pronájem části komunikace v ul. Dittrichova
Záměr pronajmout část komunikace **Dittrichova** na pozemku **parc. č. 2412** v **k.ú. Nové Město** (**Praha 2**). Účelem pronájmu je stavební zábor pro zařízení staveniště (skládka materiálu) o výměře **52 m²**. Budoucím nájemcem je společnost **Dolehide Group, a.s.** v období od **08.06.2026** na dobu maximálně jednoho roku.
1Dokumenty
Záměry obce

24. dubna 2026 — Uzavřít dodatek č. 1 ke smlouvě o pronájmu - Papírenská 199, Praha 6

1Body jednání
1
Záměr uzavřít dodatek ke smlouvě o nájmu - Papírenská 199, Praha 6
Hlavní město Praha zveřejňuje záměr uzavřít dodatek č. 1 ke smlouvě o nájmu nebytových prostor (kavárna č. 1.37, 1.38, 1.40, 1.41) v objektu **č.p. 199** na adrese **Papírenská 6, Praha 6**, který je součástí pozemku **parc. č. 1719**. Předmětem nájmu je dále **stodola** na pozemku **parc. č. 1719** a část pozemku **parc. č. 1720/1** o výměře **2 000 m2**, vše v **k.ú. Bubeneč**. Nájemcem je společnost **gyzygyzy s.r.o.** za fixní nájemné **5 000 Kč** a obratové nájemné po dobu omezení kvůli pracím v areálu **SČOV**.
1Dokumenty
Záměry obce

24. dubna 2026 — pronájem části pozemku parc. č. 2675/10, 2688/1, 2688/14 k.ú. Kyje dle přílohy

1Body jednání
1
Pronájem částí pozemků v k.ú. Kyje pro optické sítě
Záměr pronajmout části pozemků **parc. č. 2675/10**, **2688/1** a **2688/14** v **k.ú. Kyje** (ulice **Rožmberská** a **Broumarská**) společnosti **NOVÁ OPTIKA s.r.o.** Účelem nájmu je provedení výkopových prací pro **optické sítě**. Akce je rozdělena do dvou etap: 1. etapa od **18.05.2026** (329 m²) a 2. etapa od **15.06.2026** (4 m²).
1Dokumenty
Záměry obce

24. dubna 2026 — Záměr prodeje nemovitosti v k.ú. Vršovice

1Body jednání
1
Záměr prodeje nemovitosti v k.ú. Vršovice
Hlavní město Praha oznamuje záměr prodat pozemek **parc. č. 2211** v **k.ú. Vršovice**, jehož součástí je **stavba bez č.p./č.e.** Kupujícím je společnost **MS-EDI Moskevská II s.r.o.** za kupní cenu **2 390 000 Kč**. Zájemci se mohou k záměru vyjádřit do **15.05.2026**.
1Dokumenty
Informace dle §106

24. dubna 2026 — Odpověď na žádost dle zákona č. 106/1999 Sb.

1Body jednání
1
Odpověď na žádost dle zákona č. 106/1999 Sb.
Magistrát hlavního města Prahy obdržel žádost o seznam povolení k provozování **reklamních zařízení** v ochranném pásmu **místních komunikací I. třídy** na území **Prahy** za období od **1. 3. 2026 do 31. 3. 2026**. Žadatel požadoval údaje o umístění (parcely, k.ú.), souřadnice a dobu platnosti.
Rozhodnutí: Povinný subjekt sdělil, že v uvedeném období vydal 0 povolení k provozování reklamních zařízení.
1Dokumenty
Záměry obce

23. dubna 2026 — pronájem části komunikace parc. č. 2067 k.ú. Bubeneč dle přílohy

1Body jednání
1
Pronájem části komunikace V. P. Čkalova, k.ú. Bubeneč
Záměr hlavního města Prahy pronajmout část komunikace **V. P. Čkalova** na pozemku **parc. č. 2067** v **k.ú. Bubeneč** (**Praha 6**). Pronájem je určen pro společnost **Fontána Grill & Bar, s.r.o.** za účelem provozování **restaurační předzahrádky** bez pódia o výměře **28 m²** v období od **11.05.2026** do **30.09.2026**.
1Dokumenty
Dražby a exekuce

23. dubna 2026 — Dražba zrušení povinní Peřina, Peřinová nemovitosti k.ú. Rudné

1Body jednání
1
Zrušení dražby nemovitostí v k.ú. Rudné
Soudní exekutor rozhodl o **zrušení elektronické dražby** nemovitých věcí, která byla původně nařízena na **23.4.2026**. Důvodem je úplné vymožení pohledávky na výživném včetně nákladů exekuce. Předmětem dražby byly nemovitosti v obci **Vysoká Pec**, **k.ú. Rudné** (LV 1152), konkrétně **stavba pro rodinnou rekreaci č.e. 60** na parcele **st. 71**, dále parcela **st. 215** (zbořeniště) a pozemky parc. č. **682**, **2071** a **2166**.
Rozhodnutí: Soudní exekutor ruší elektronickou dražbu nemovitých věcí nařízenou na den 23.4.2026.
1Dokumenty
1Obrázky
Záměry obce

23. dubna 2026 — pronájem části komunikace parc. č. 3103/1 k.ú. Nusle dle přílohy

1Body jednání
1
Záměr pronájmu části komunikace Na Pankráci
Hlavní město Praha oznamuje záměr pronajmout část komunikace **Na Pankráci** na pozemku **parc. č. 3103/1** v **k.ú. Nusle**. Pronájem je určen pro umístění **reklamního infopoutače** o výměře **1 m²** pro budoucího nájemce **Vlaštovka s.r.o.** v období od **01.07.2026** do **31.12.2026**.
1Dokumenty
Dotace

23. dubna 2026 — Usneseni c. 33/13 - k návrhu na poskytnutí finančních prostředků formou jednorázové účelové individuální neinvestiční dotace subjektu Proxima Sociale, o.p.s., úpravu rozpočtu vlastního hl.m. Prahy kap

1Body jednání
1
Poskytnutí individuální dotace pro Proxima Sociale, o.p.s. na Probační program 2026
Zastupitelstvo hl. m. Prahy schvaluje poskytnutí jednorázové účelové individuální neinvestiční dotace ve výši **800 000 Kč** subjektu **Proxima Sociale, o.p.s.** (IČO: **49625624**) se sídlem **Rakovského 3138/2, Praha 4**. Finanční prostředky jsou určeny na dofinancování **Probačního programu Proxima Sociale 2026** pro mladistvé pachatele, který je realizován na adrese **Na Strži 1683/40, Praha 4** a v rámci resocializačních výjezdů v **Dobříši**. Tato dotace doplňuje dříve schválenou částku **413 000 Kč**, čímž celková podpora programu pro rok 2026 dosáhne **1 213 000 Kč**.
Rozhodnutí: Zastupitelstvo schvaluje poskytnutí dotace 800 000 Kč a uzavření Dodatku č. 1 k veřejnoprávní smlouvě o poskytnutí dotace.
1Dokumenty
Rozpočet

23. dubna 2026 — Usneseni c. 33/14 - k návrhu na úpravu rozpočtu vlastního hlavního města Prahy v roce 2026 a poskytnutí finančních prostředků na posílení mzdových prostředků pro pracovníky škol a školských zařízení z

1Body jednání
1
Úprava rozpočtu na posílení mzdových prostředků ve školství pro rok 2026
Zastupitelstvo hl. m. Prahy schválilo úpravu rozpočtu na rok **2026** za účelem posílení mzdových prostředků (platů a odvodů) pro pracovníky škol a školských zařízení. Celkem bylo vyčleněno **305 788,0 tis. Kč** pro školy zřizované Prahou a **349 768,2 tis. Kč** pro školy zřizované městskými částmi. Finanční prostředky budou vyplaceny ve dvou splátkách k **31. 7. 2026** a **31. 10. 2026**. Mezi podpořené instituce patří například **Gymnázium prof. Jana Patočky (Jindřišská 36)**, **Malostranské gymnázium (Josefská 7)** nebo **Gymnázium Na Pražačce (Nad Ohradou 23)**.
Rozhodnutí: Zastupitelstvo schvaluje úpravu rozpočtu vlastního hlavního města Prahy na rok 2026 a poskytnutí finančních prostředků na posílení mzdových prostředků pracovníků škol.
1Dokumenty
Dotace

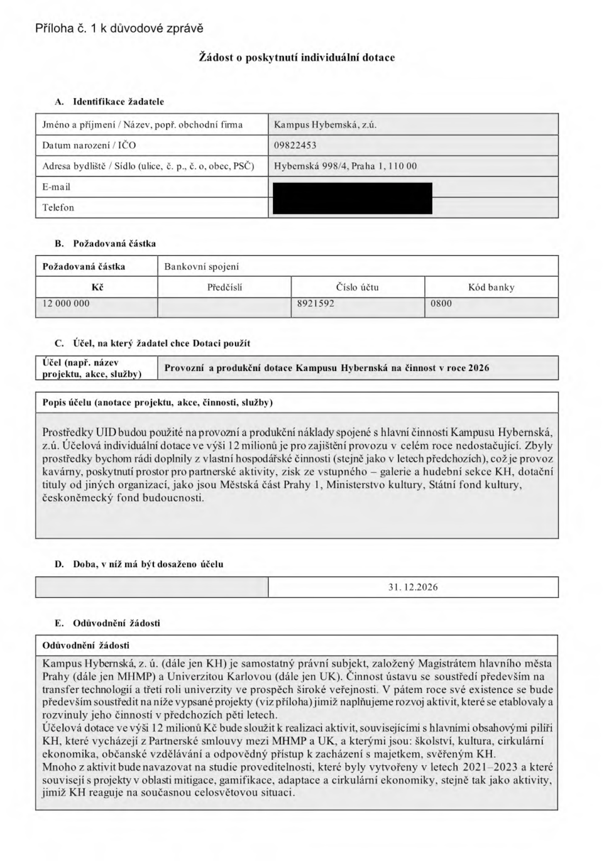
23. dubna 2026 — Usneseni c. 33/17 - k návrhu na poskytnutí neinvestiční účelové individuální dotace KAMPUS HYBERNSKÁ, z. ú. na zajištění provozu a produkce, resp. krytí části nákladů nehospodářských činností, kde bud

1Body jednání
1
Poskytnutí individuální dotace pro KAMPUS HYBERNSKÁ, z. ú. na rok 2026
Zastupitelstvo schválilo neinvestiční účelovou individuální dotaci ve výši **12 000 000 Kč** pro organizaci **KAMPUS HYBERNSKÁ, z. ú.** (IČO: **09822453**) se sídlem **Hybernská 998/4, Praha 1**. Finanční prostředky jsou určeny na zajištění provozu a produkce nehospodářských činností v roce **2026**. Součástí usnesení je i schválení veřejnoprávní smlouvy o poskytnutí dotace.
Rozhodnutí: Zastupitelstvo schvaluje poskytnutí dotace ve výši 12 000 000 Kč a znění veřejnoprávní smlouvy.
1Dokumenty
8Obrázky
Nové

23. dubna 2026 — Rozpočtové opatření - Usnesení Zastupitelstva č.33/15 - k návrhu na úpravu rozpočtu vlastního hlavního města Prahy v roce 2026 u škol a školských zařízení, zřizovaných hlavním městem Prahou

1Dokumenty
Záměry obce

23. dubna 2026 — pronájem části komunikace parc. č. 2107/1 k.ú. Košíře dle přílohy

1Body jednání
1
Pronájem části komunikace U Tenisu, k.ú. Košíře
Záměr pronajmout část komunikace **U Tenisu** na pozemku **parc. č. 2107/1** v **k.ú. Košíře** o výměře **12,3 m²**. Účelem pronájmu je provedení výkopu pro vjezd do objektu v ulici **U Tenisu**. Budoucím nájemcem je společnost **CONSTRUCTION TEAM s.r.o.** v období od **20.05.2026** na dobu maximálně jednoho roku.
1Dokumenty