Věci Obecní

Detail

Dokument

Praha 3

Hlavní město Praha

Havlíčkovo náměstí 700, 13000 Praha 3
Web obce ↗
Doprava

2. dubna 2026 — Rozhodnutí - ZUK - rekonstrukce kanalizace ul. Seifertova a změna dopravního režimu v ul. Krásova

1Body jednání
1
Rekonstrukce kanalizace a přechodná úprava provozu v ulici Seifertova a okolí
Stanovení přechodné úpravy provozu na pozemních komunikacích **Seifertova**, **Krásova**, **Vlkova**, **Přibyslavská** a **Blahníkova** v Praze 3. Důvodem je **oprava kanalizace** (stoka D) a související stavební zábory. Opatření zahrnuje částečnou **uzavírku ulice Krásova** v úseku **Vlkova** – **Seifertova** s otočením jednosměrného provozu. Realizace je rozdělena do tří etap: **Etapa 2.A** (02. 04. 2026 – 14. 04. 2026), **Etapa 2.B** (15. 04. 2026 – 30. 11. 2026) a **Etapa 2.C** (01. 12. 2026 – 28. 02. 2027). Dopravní omezení se dotkne i okolí zastávky TRAM **Viktoria Žižkov**.
Rozhodnutí: Úřad městské části Praha 3 **vydává opatření obecné povahy** – stanovení přechodné úpravy provozu na uvedených pozemních komunikacích.
7Dokumenty
2Obrázky
Doprava

2. dubna 2026 — Rozhodnutí + opatření Žádost o povolení vyhrazeného parkoviště pro vozidlo osoby ZTP

1Body jednání
1
Povolení vyhrazeného parkoviště pro vozidlo osoby ZTP v ulici Křišťanova
Rozhodnutí a opatření obecné povahy ve věci žádosti o povolení **vyhrazeného parkoviště** pro vozidlo osoby se zdravotním postižením (ZTP). Předmětem je stanovení místní úpravy provozu na pozemních komunikacích v **ulici Křišťanova**, **Praha 3**, spočívající v instalaci příslušného svislého a vodorovného dopravního značení.
Rozhodnutí: Bylo vydáno **rozhodnutí o povolení vyhrazeného parkování** a stanovení místní úpravy provozu pro vyhrazené parkoviště v **ulici Křišťanova**.
2Dokumenty
1Obrázky
Doprava

2. dubna 2026 — Rozhodnutí+opatření+Stanovení+instalaŽádost o povolení vyhrazeného parkoviště pro vozidlo osoby ZTP

1Body jednání
1
Stanovení vyhrazeného parkoviště ZTP v ulici Sudoměřská
Rozhodnutí a opatření obecné povahy o **stanovení místní úpravy provozu** na pozemních komunikacích. Předmětem je povolení a instalace dopravního značení pro **vyhrazené parkoviště pro vozidlo osoby ZTP** v ulici **Sudoměřská** v městské části **Praha 3**.
Rozhodnutí: Schválení stanovení místní úpravy provozu pro vyhrazené parkoviště.
2Dokumenty
1Obrázky
Doprava

2. dubna 2026 — Rozhodnutí+opatření+instalace Žádost o povolení vyhrazeného parkoviště pro vozidlo osoby ZTP

1Body jednání
1
Stanovení úpravy provozu - vyhrazené parkoviště ZTP v ulici Rečkova
Odbor dopravy Úřadu městské části Praha 3 stanovuje úpravu provozu na pozemní komunikaci v ulici **Rečkova 1715/9**, **Praha 3**. Úprava spočívá v instalaci svislého dopravního značení **IP 12** (Vyhrazené parkoviště) pro vozidlo s RZ **7AX 5261** a vyznačení vodorovného dopravního značení **V 10f** v délce **2,4 m**. Jedná se o zřízení nového vyhrazeného parkovacího stání pro osobu se zdravotním postižením.
Rozhodnutí: Úřad městské části Praha 3 stanovuje úpravu provozu na pozemních komunikacích. Opatření obecné povahy nabývá účinnosti pátým dnem po dni vyvěšení veřejné vyhlášky.
2Dokumenty
Stavební řízení

2. dubna 2026 — Atelier 87 s.r.o. - Jednotné environmentální stanovisko (§ 6 zákon č. 148/2023 Sb.) -P3

1Body jednání
1
Jednotné environmentální stanovisko - přístavba výtahu Písecká 4
Vydání souhlasného jednotného environmentálního stanoviska (JES) pro záměr **„STAVEBNÍ ÚPRAVY BYTOVÉHO DOMU - PŘÍSTAVBA VÝTAHU PÍSECKÁ 4“**. Projekt se týká bytového domu na adrese **Písecká 2228/4, Praha 3** na pozemku **parc. č. 3631** v **k.ú. Vinohrady**. Stavební úpravy spočívají v přístavbě prosklené výtahové šachty s technologií lanového výtahu o rozměrech **1,79x1,76 m** k dvorní fasádě objektu. Záměr byl posouzen z hlediska odpadového hospodářství a vlivů na životní prostředí a byl shledán jako přípustný bez dalších podmínek.
Rozhodnutí: Úřad městské části Praha 3 vydává **SOUHLASNÉ JEDNOTNÉ ENVIRONMENTÁLNÍ STANOVISKO**. Záměr je z hlediska vlivů na všechny dotčené složky životního prostředí **přípustný**.
1Dokumenty
Stavební řízení

2. dubna 2026 — Čajkovského 1287/2 - JES - anonymizace

1Body jednání
1
Jednotné environmentální stanovisko - Čajkovského 1287/2
Zveřejnění dokumentace k jednotnému environmentálnímu stanovisku (JES) pro objekt na adrese **Čajkovského 1287/2**, **Praha 3** v katastrálním území **Žižkov**.
1Dokumenty
Stavební řízení

2. dubna 2026 — Dílna úsměvů s.r.o. - Jednotné environmentální stanovisko (§ 6 zákon č. 148/2023 Sb.) -P3

1Body jednání
1
Dílna úsměvů Žižkov - Jednotné environmentální stanovisko
Vydání souhlasného jednotného environmentálního stanoviska pro záměr **„Dílna úsměvů Žižkov“**. Jedná se o změnu užívání nebytového prostoru v přízemí novostavby bytového domu **Parková čtvrť – blok II** na pozemku **parc. č. 4450/77** v **k. ú. Žižkov**. Účel užívání se mění z dosavadních „služeb“ (péče o tělo) na **zubní ordinaci**. V rámci záměru vznikne šest ordinací, recepce s čekárnou a sterilizační místnost. Stavební práce zahrnují dispoziční změny v interiéru bez zásahu do nosných konstrukcí a vnější obálky objektu.
Rozhodnutí: Souhlasné jednotné environmentální stanovisko - záměr je z hlediska vlivů na životní prostředí přípustný.
1Dokumenty
Stavební řízení

2. dubna 2026 — APREA s.r.o. - Jednotné environmentální stanovisko (§ 6 zákon č. 148/2023 Sb.) -P3

1Body jednání
1
Jednotné environmentální stanovisko pro stavební úpravy jednotky B1 na květinářství
Úřad městské části Praha 3 vydal souhlasné jednotné environmentální stanovisko (JES) pro záměr **„Stavební úpravy vymezené jednotky B1 (992.1) se změnou užívání na Květinářství“**. Projekt se týká bloku I. **Rezidence Parková čtvrť** na adrese **Jana Želivského 2934** na **Praze 3 – Žižkov**, na pozemku **parc. č. 4450/54** v **k. ú. Žižkov**. Stavební práce zahrnují interiérové vestavby (příčky, podhledy, rozvody) v severní části areálu **bývalého nákladového nádraží Žižkov**. Záměr byl posouzen jako přípustný z hlediska odpadového hospodářství i dalších složek životního prostředí.
Rozhodnutí: SOUHLASNÉ JEDNOTNÉ ENVIRONMENTÁLNÍ STANOVISKO. Záměr je z hlediska vlivů na všechny dotčené složky životního prostředí přípustný.
1Dokumenty
Volná místa

2. dubna 2026 — VŘ 18 OTSMI - ved. OIPO

1Body jednání
1
Výběrové řízení: vedoucí oddělení investic příspěvkových organizací odboru technické správy majetku a investic
Městská část **Praha 3** vyhlašuje výběrové řízení na obsazení pracovní pozice **vedoucí/vedoucího oddělení investic příspěvkových organizací odboru technické správy majetku a investic**. Místem výkonu práce je **Praha 3**. Nabízená platová třída je 10 s příplatkem za vedení a možností osobního příplatku. Náplň práce zahrnuje agendu investiční činnosti, spolupráci s projektanty, kontrolu projektové dokumentace a dozor realizace investic a oprav. Přihlášky je nutné podat nejpozději do **2. 4. 2026** poštou nebo osobně na adresu **Havlíčkovo náměstí 700/9, Praha 3**, případně elektronicky.
1Dokumenty
Doprava

1. dubna 2026 — Rozhodnutí + opatření Žádost - předzahrádka - Jagellonská 16 x Velehradská 14

1Body jednání
1
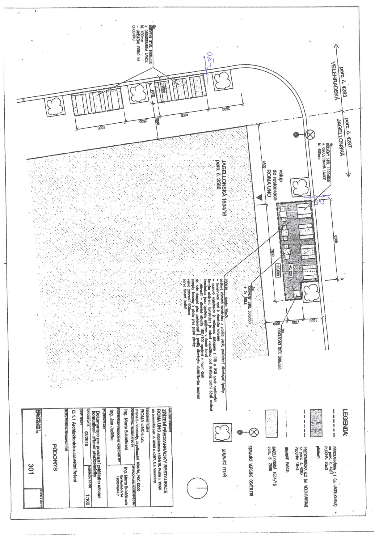
Stanovení přechodné úpravy provozu v ul. Jagellonská a Velehradská
Opatření obecné povahy týkající se stanovení přechodné úpravy provozu na pozemní komunikaci **Jagellonská**, před objektem **1634/16** v Praze 3. Úprava spočívá v umístění přechodného dopravního značení (B 28, IP 12 (c), IP 12 (f) a dodatkových tabulek) z důvodu umístění a provozování **restaurační předzahrádky restaurace ROMA UNO**. Předzahrádka se nachází na pozemcích **parc. č. 4283** a **4287** v k.ú. **Vinohrady** na křižovatce ulic **Jagellonská** a **Velehradská**. Termín realizace je stanoven od **01. 04. 2026** do **31. 10. 2026**.
Rozhodnutí: Úřad městské části Praha 3 **vydává opatření obecné povahy**, kterým **stanovuje přechodnou úpravu provozu** v ulici **Jagellonská** (před č.p. **1634/16**) v termínu od **01. 04. 2026** do **31. 10. 2026** za účelem zřízení restaurační předzahrádky.
2Dokumenty
3Obrázky
Veřejné vyhlášky

1. dubna 2026 — Žádost o zveřejnění na úřední desce

1Body jednání
1
Hromadný předpisný seznam - místní poplatek za odpad 2025
Městský úřad Šumperk oznamuje, že od **1.4.2026** do **4.5.2026** je v budově **Městského úřadu Šumperk** na adrese **nám. Míru 364/1** (budova radnice, odbor finanční a plánovací, přízemí, dveře č. 414) zpřístupněn k nahlédnutí **Hromadný předpisný seznam čj. MUSP 41712/2026**. Tímto seznamem jsou vyměřeny nedoplatky **místního poplatku za obecní systém odpadového hospodářství za poplatkové období roku 2025** poplatníkům, kteří poplatek nezaplatili včas nebo ve správné výši dle **Obecně závazné vyhlášky č. 7/2023**.
Rozhodnutí: Vyměření nedoplatků místního poplatku za obecní systém odpadového hospodářství za poplatkové období roku 2025.
1Dokumenty
Doprava

1. dubna 2026 — Rozhodnutí + opatření Žádost o povolení vyhrazeného parkoviště pro vozidlo osoby ZTP

1Body jednání
1
Povolení vyhrazeného parkoviště pro vozidlo osoby ZTP v ulici Křížkovského
Rozhodnutí a opatření obecné povahy ve věci žádosti o povolení **vyhrazeného parkoviště pro vozidlo osoby ZTP**. Místní úprava provozu se týká ulice **Křížkovského** v městské části **Praha 3**. Součástí dokumentace je situační nákres dopravního značení.
Rozhodnutí: Schválení žádosti o povolení vyhrazeného parkoviště a stanovení místní úpravy provozu na pozemních komunikacích.
2Dokumenty
1Obrázky
Doprava

1. dubna 2026 — Rozhodnutí + opatření Žádost o povolení vyhrazeného parkoviště pro vozidlo osoby ZTP

1Body jednání
1
Povolení vyhrazeného parkoviště pro vozidlo osoby ZTP v ulici Pospíšilova
Rozhodnutí a opatření obecné povahy ve věci žádosti o povolení **vyhrazeného parkovacího stání** pro vozidlo přepravující osobu těžce pohybově postiženou (**ZTP**). Parkovací místo je zřízeno v ulici **Pospíšilova**, **Praha 3**.
Rozhodnutí: Povolení vyhrazeného parkoviště pro vozidlo osoby ZTP.
2Dokumenty
1Obrázky
Veřejné vyhlášky

1. dubna 2026 — Doručení veřejnou vyhláškou-žádost-sídlo-WDTP s.r.o.

1Body jednání
1
Doručení veřejnou vyhláškou - žádost týkající se sídla společnosti WDTP s.r.o.
Oznámení o doručení písemnosti veřejnou vyhláškou pro společnost **WDTP s.r.o.** ve věci žádosti týkající se sídla společnosti. Dokument je vyvěšen na úřední desce Městské části **Praha 3**.
1Dokumenty
Stavební řízení

1. dubna 2026 — Povolení záměru - zrychlené řízení

1Body jednání
1
Rekonstrukce restaurace, Jana Želivského 1777/4, Žižkov
Stavební úřad povolil záměr **„Rekonstrukce restaurace“** na adrese **Jana Želivského 1777/4, Žižkov** na pozemcích **parc. č. 4147** a **4148** v **k.ú. Žižkov**. Stavební úpravy zahrnují změnu dispozice, přesun sociálního zázemí do suterénu, vybudování nového pomocného schodiště a nákladního výtahu. Kuchyně v přízemí bude rozšířena. Součástí je nová elektroinstalace a vzduchotechnika s rekuperací. Žadatelem je společnost **Jídelny a restaurace s.r.o.**
Rozhodnutí: Stavební úřad **schvaluje stavební záměr**.
1Dokumenty
Doprava

1. dubna 2026 — VV - návrh OOP - stanovení přechodné úpravy provozu - jarní a podzimní KÚK 2026

1Body jednání
1
Přechodná úprava provozu - Komplexní úklid komunikací (KÚK) 2026
Návrh opatření obecné povahy na stanovení přechodné úpravy provozu (dočasný zákaz zastavení) na místních komunikacích **II. – IV. třídy** na území **Městské části Praha 3**. Opatření je navrženo z důvodu konání akce **Komplexní úklid komunikací – KÚK 2026**. Jarní termín úklidu je stanoven na období **01. 04. 2026 – 31. 05. 2026** (bloky 1-19), podzimní termín na **20. 09. 2026 – 23. 10. 2026**, vždy v čase **8:00 – 15:00 h**. Značení **B 28 + E 13 (zákaz zastavení)** bude instalováno minimálně 7 dní předem. Žadatelem je **Technická správa komunikací hl. m. Prahy, a.s.**, **Veletržní 1623/24, Praha 7**. Připomínky a námitky lze uplatnit do 10 dnů na adrese **Seifertova 559/51, 130 00 Praha 3**.
5Dokumenty
Záměry obce

1. dubna 2026 — Usnesení RMČ č. RMČ/2026/0240 ze dne 1.4.2026 - záměr pronájmu části pozemku parc. č. 1829/1, ŽI

1Body jednání
1
Záměr pronájmu části pozemku parc. č. 1829/1 v k.ú. Žižkov
Rada městské části Praha 3 zveřejňuje záměr pronájmu části pozemku **parc. č. 1829/1** v katastrálním území **Žižkov**. Předmětem nájmu je plocha o výměře **6,5 m2**. V doprovodné dokumentaci (katastrální mapa) je tato plocha vyznačena na **parcele č. 1829/29**.
Rozhodnutí: Rada městské části Praha 3 **schválila záměr pronájmu** části pozemku.
1Dokumenty
2Obrázky
Doprava

1. dubna 2026 — OOP - stanovení přechodné úpravy provozu - jarní a podzimní KÚK 2026

1Body jednání
1
Stanovení přechodné úpravy provozu - Komplexní úklid komunikací 2026
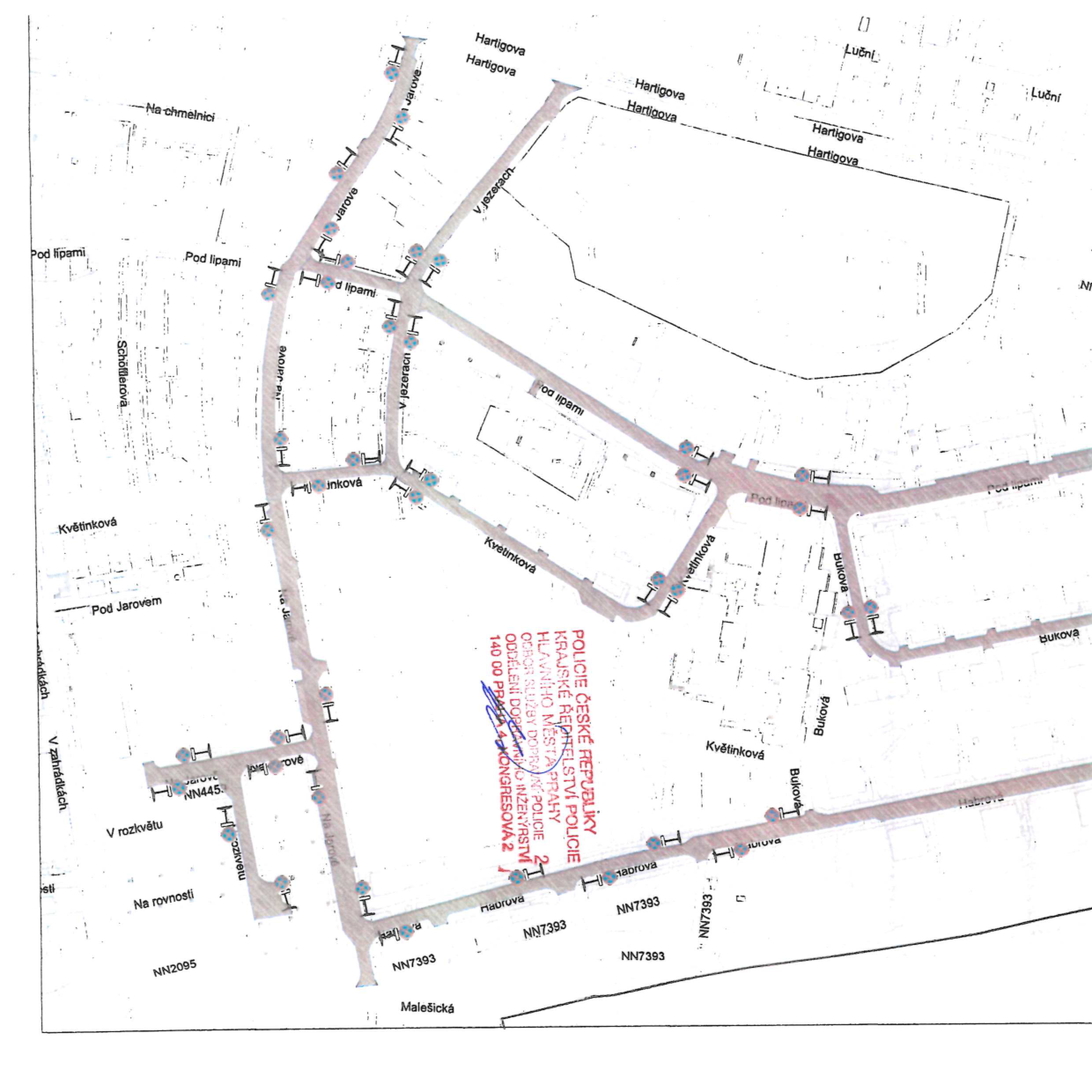
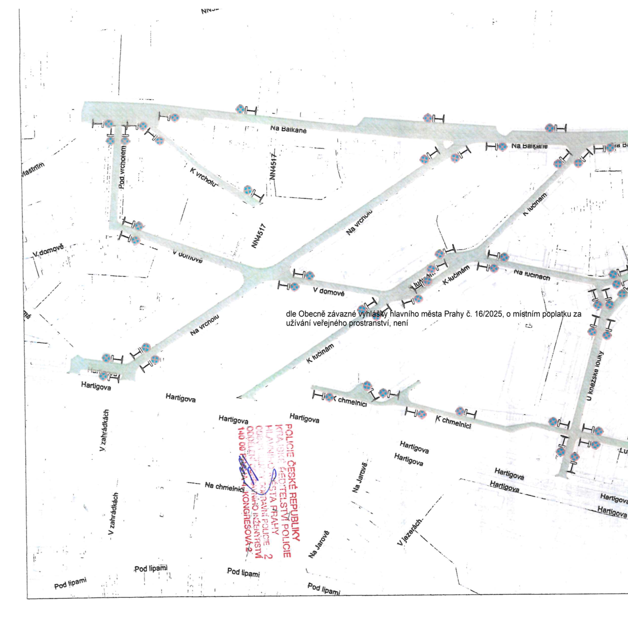
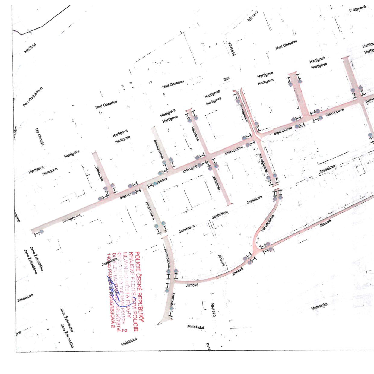
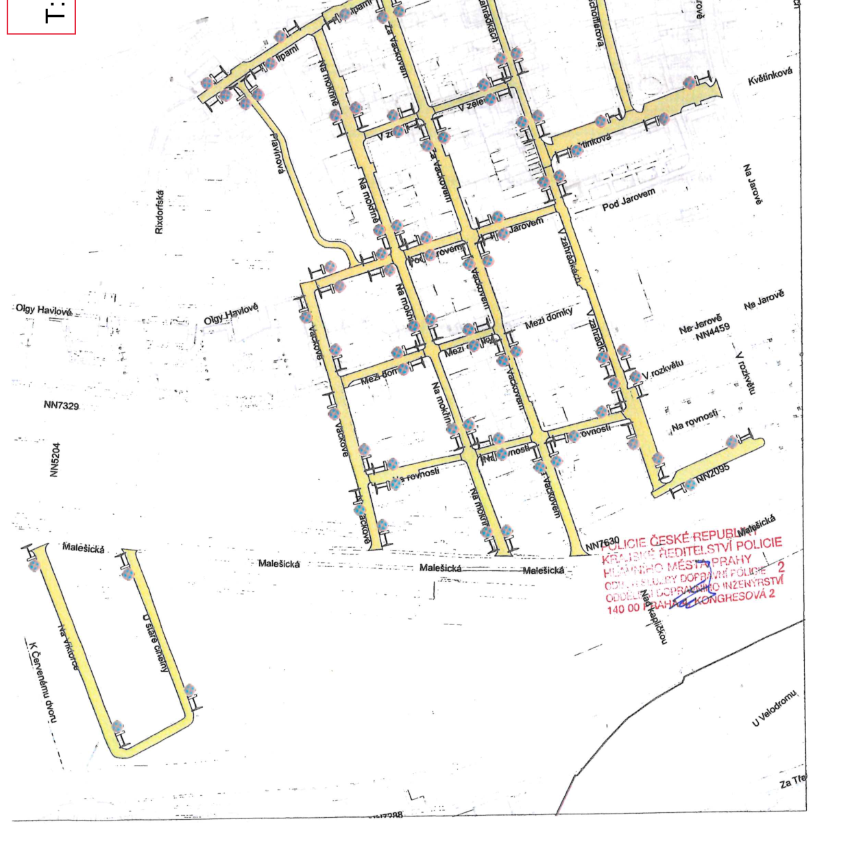
Stanovení **přechodné úpravy provozu** na místních komunikacích II. – IV. třídy na území **Prahy 3** z důvodu zajištění **Komplexního úklidu komunikací (KÚK) 2026**. Opatření spočívá v dočasném **zákazu zastavení** silničních vozidel (svislé dopravní značky **B 28 + E 13**) dle harmonogramu jednotlivých bloků. Jarní kolo proběhne v termínu **1. 4. 2026 – 31. 5. 2026**, podzimní kolo v termínu **30. 9. 2026 – 23. 10. 2026**. Úklid se dotkne oblastí ulic **Biskupcova**, **Jeseniova**, **Na Balkáně**, **Hartigova**, **Slavikova**, **Fibichova** a dalších úseků dle grafických příloh.
Rozhodnutí: Úřad městské části Praha 3 **vydává opatření obecné povahy**, kterým **stanovuje přechodnou úpravu provozu** spočívající v instalaci přenosného dopravního značení „Zákaz zastavení“.
5Dokumenty
7Obrázky
Doprava

1. dubna 2026 — Rozhodnutí + opatření Žádost - stavební zábor - Krásova 957/24

1Body jednání
1
Stavební zábor - Krásova 957/24
Rozhodnutí a opatření obecné povahy o povolení zvláštního užívání pozemní komunikace a stanovení přechodné úpravy provozu na pozemní komunikaci z důvodu provádění **výkopových prací**. Zábor chodníku a části vozovky bude probíhat v termínu od **1. 4. 2026** do **30. 4. 2026** před domem na adrese **Krásova 957/24**, v katastrálním území **Žižkov**.
Rozhodnutí: Povolení stavebního záboru a stanovení přechodné úpravy provozu.
2Dokumenty
Doprava

1. dubna 2026 — OOP - stanovení přechodné úpravy - Ondříčkova 1571/2

1Body jednání
1
Stanovení přechodné úpravy provozu: Ondříčkova a Slavíkova
Opatření obecné povahy o stanovení přechodné úpravy provozu v ulicích **Ondříčkova (úsek Slavíkova - Laubova)** a **Slavíkova** na Praze 3. Důvodem opatření je prodloužení termínu a zmenšení stavebního záboru (umístění zařízení staveniště) při rekonstrukci objektu na adrese **Ondříčkova 1571/2** (rovněž označen jako **Slavíkova 1571/6**). Součástí je i uzavírka části chodníku před objektem. Termín realizace je stanoven od **01. 04. 2026** do **15. 05. 2026**.
Rozhodnutí: Úřad městské části Praha 3, Odbor dopravy, **vydává** opatření obecné povahy – stanovení přechodné úpravy provozu na pozemních komunikacích **Ondříčkova a Slavíkova** v termínu **01. 04. 2026 – 15. 05. 2026**.
2Dokumenty
1Obrázky